Our Services

Measured Building Survey London

Character properties deserve accurate measurements. We deliver planning-ready, renovation-friendly existing drawings in PDF + CAD—built from careful on-site measurement across Greater London and beyond.

Whether you’re buying, leasing, extending, or refurbishing, start with the right facts—not guesses.

What is a Measured Building Survey?

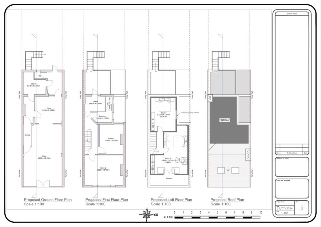
measured building survey is a detailed on-site measurement of your property to produce accurate existing drawings. This matters particularly in older cities where homes often have extensions, loft conversions, party walls, uneven floors, and layouts that don’t match estate-agent plans.

Common reasons clients need a measured survey:

Local context: Victorian terraces, mansion blocks, mixed-use high streets, and conservation areas mean accuracy is everything.

What's Included in Our Survey Service

Our measured building survey service is built for real projects, not just “nice drawings”.

Typical inclusions:

Typical inclusions:

As-built drawings – Showing the property exactly as it exists today

Floor plan surveys – Accurate measured floor plans to scale

Existing building drawings – Complete documentation of current state

Lease plans – For tenancy, licensing, or legal clarity

Packages from £350

(final quote depends on scope)

What You'll Receive

Every project includes professional deliverables ready for your architect, engineer, or builder:

Scaled floor plans (1:50 or 1:100 as appropriate)

PDF set for printing and client review

Editable DWG files for your architect or designer

Clear annotation of room names and key dimensions

Drawing title block with project reference and scale

Revisions incorporated based on your feedback

Typical turnaround: 3-5 working days

From site visit completion to final delivery. Urgent projects can often be accommodated—just let us know your deadline.

Why Choose PlanCraftDaily?

You want someone who measures properly, communicates clearly, and delivers on time.

2+ Years Experience

Hands-on delivery across Greater London and the Home Counties

120+ Projects

Homes, HMOs, small commercial, and mixed-use properties completed

99% Positive Feedback

Clients consistently praise our speed, clarity, and accuracy

Transparent Pricing

Clear, itemised quotes with no hidden fees or surprises

Plan Your Floors

In 6 Easy Steps

Receive Requirements

We start with receiving your project with brief discussion and understanding requirements.

Do Site Survey if Needed

If you don't have any survey drafts, we have to conduct a site survey and prepare the drawings.

Draft First Design

After completing the draft design, we will show it to you for further changes if needed.

Receive Client Feedback

If any changes/amendments needed, we will prepare 2-3 changes for free. For the 4th change charges are applicable.

Final Drawing on Feedback

After the changes/amendments, we will then show you the final drafts and submit the invoice for the CAD files and PDFs.

Deliver Project

After confirming the final payment. We will then submit you the DWG file as well as the PDFs. We are happy to work with you again soon.

Our Approach & Quality Standards

Experienced Surveyors

Every survey is carried out by trained professionals with hands-on experience measuring residential and commercial properties across the city and surrounding counties.

Quality Checks

Every set of drawings goes through internal QA before delivery. We cross-check dimensions, verify completeness, and ensure drawings meet the brief you provided.

Professional Equipment

We use laser distance meters and digital measurement tools to capture accurate dimensions—typically within 5-10mm tolerance for interior measurements.

Error Prevention

We take redundant measurements of key walls and openings, photograph problem areas, and note any anomalies. This reduces the risk of surprises during your build.

Frequently Asked Questions

Common questions about our measured building survey service

How much does a measured building survey cost?

Pricing depends on property size, access complexity, and required drawings. A typical one-bedroom flat costs around £350-£450, while a three-storey Victorian terrace with extensions might be £600-£900. Multi-storey properties, basement access, or complex layouts increase the price. We provide clear, itemised quotes after you share your postcode, property type, and project goal—no hidden fees or surprises.

Most residential site visits take 1–3 hours. A compact flat usually needs 60–90 minutes; a larger terrace or semi-detached house with loft and rear extension typically takes 2–3 hours. Commercial or multi-unit properties may require half a day. After the site visit, CAD drafting and quality checks usually take 3–5 working days depending on scope and current workload.

We work across all Greater London boroughs—Central, North, South, East, and West—including Croydon, Ealing, Barnet, Enfield, Hackney, and more. We also regularly travel to Surrey, Hertfordshire, Essex, Kent, Berkshire, and Buckinghamshire. Share your postcode and we’ll confirm availability within a few hours.

A measured survey is the on-site measurement process—our surveyor captures dimensions, wall positions, and key features. As-built drawings are the finished CAD/PDF outputs created from those measurements, showing the property exactly as it exists today. Architects, engineers, and builders use these drawings to design extensions, plan refurbishments, and reduce costly surprises during construction.

Yes—many clients specifically need existing plans for planning applications. Councils and designers require accurate baseline drawings before proposed plans can be created. We deliver scaled floor plans and elevations (when required) in CAD and PDF formats that your architect or planning consultant can use directly in their submissions.

Keep access routes clear—rooms, loft hatches, and external areas we need to measure. For flats, arrange building entry and check any parking/loading restrictions. If you have old drawings, they can provide useful context, but we don’t rely on them. We’ll contact you beforehand to confirm any specific access requirements.

Standard deliverables include PDF (print-ready, scaled) and editable CAD files (DWG format). If your architect, engineer, or builder has specific requirements—layer naming conventions, particular sheet sizes, or DXF format—let us know upfront and we’ll tailor the output to fit your workflow seamlessly.

Key factors include: property size (floor area and number of storeys), layout complexity (extensions, converted lofts, split levels), access difficulty (restricted hours, scaffolding needed), and deliverable scope (floor plans only vs. full elevations and sections). We always explain what’s driving the quote so you can adjust scope if needed.

You’ll receive a scaled PDF set for printing and review, plus editable CAD files (DWG) your design team can work with immediately. Typical outputs include floor plans showing room layouts, walls, doors, windows, and key dimensions. Elevations, sections, and roof plans are available when needed for your project.

Want to collaborate?

Find a team of surveyors and cad technician you can rely on. Every day, we build trust through communication, transparency, and results.