Natalie, a customer success assistant for a residential design company, contacted us about two neighbouring first-floor flats in Sittingbourne.
They already had:
- Existing plans and DWG files for both properties
- A photo set of the building and context
They needed us to prepare proposed first-floor extension drawings for both flats, and asked for:
- A quote and timeframe for “floor plans only”
- A quote and timeframe for “floor plans with elevations”
We:
- Provided two clear options (plans only vs plans + elevations) with an estimated turnaround of 3–4 working days once instructed.
- Explained that our work would be based entirely on the existing drawings and information they supplied, rather than a fresh measured survey.
- Asked Natalie to confirm they had the legal rights to use and modify the existing drawings before we proceeded.
Natalie confirmed they did have the necessary rights and chose the “floor plans with elevations” option for both addresses, so we issued two invoices (one per flat) with an initial payment due to secure and activate the work order.
How we prepared the base for the proposed drawings
Because the building had already been surveyed and drawn by others, we didn’t need to visit site. Instead, we:
- Imported the client’s DWG files into AutoCAD at 1:1 metric scale.
- Checked the incoming geometry against the dimensional information in the original files to ensure the scale and units were correct.
- Reviewed the linked photo pack of the properties so we understood:
- How the two first-floor flats related to each other
- The appearance and massing of neighbouring properties
- Any features that might be relevant for the proposed first-floor extension design
This gave us a solid, rights-cleared base model to build the proposals on.
Turning the brief into proposed drawings
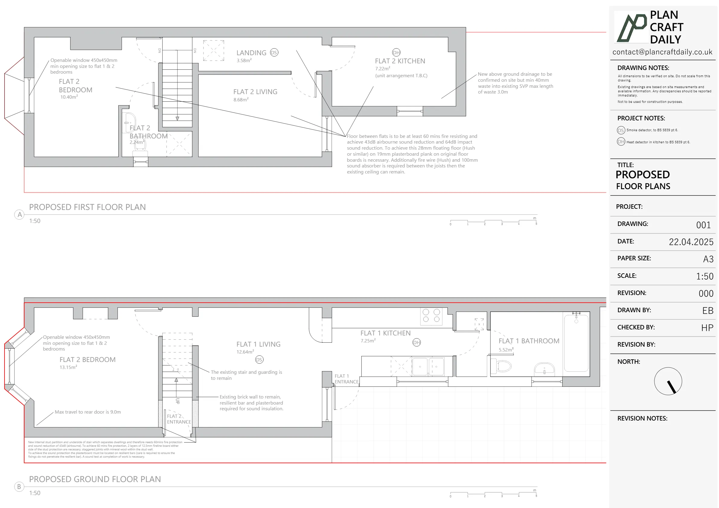
With the base DWGs and photos in place, our CAD team:
- Duplicated the existing first-floor plan layouts and created new proposed layers so the original information remained intact and traceable.
- Adjusted and extended the first-floor plans for each flat in line with the client’s brief for first-floor extensions, ensuring:
- Room layouts remained practical
- Stair and access positions were respected
- New walls and openings aligned with the existing structural grid as far as possible
- Set up proposed elevations to match the updated plans, so that:
- The new first-floor volume read correctly in context with the existing frontage and rear elevation
- The relationship with the neighbouring property façades looked coherent and realistic
Throughout, we worked within the existing title blocks and drawing structure, but cleaned up layers, lineweights and annotation so the proposals would be easy to read and present.
Once the first pass was complete, we:
- Exported a draft PDF pack for both flats and moved the card to “Approval/Finalisation/Pending” in our internal system.
- Confirmed to Natalie that once all outstanding initial payments were fully reconciled, we’d finalise and issue the completed proposed pack.
Managing payments, references and expectations
This project ran in parallel with another address for the same design team (5 Piltdown), so it was important to keep the finances and references clean.
Key points we managed along the way:
- Payment to activate work
- We reminded Natalie that the initial payments for both Chalkwell addresses were required to activate the work order.
- When she checked in asking for drawing updates, we explained we were still awaiting pending payments and asked her to speak with her client, Isaac.
- Ambiguous payment reference
- A payment came through with a reference that mentioned a different project.
- On our side, we expected a different amount for the other project’s proposed drawings, so the numbers didn’t match.
- We wrote to Natalie to clarify whether this payment was actually intended as the initial payment for the two Chalkwell Road flats.
- She confirmed that it was, and that the confusion came from her wording to the client.
- Clearing up project rights and scope
- Before we issued invoices, we asked Natalie explicitly to confirm they had rights to modify the existing drawings for Chalkwell Road.
- Once she confirmed, we proceeded with invoicing each flat separately and moved ahead with the drawing work.
By handling these bits of admin in writing – rather than making assumptions – we avoided misallocating payments and kept a clear audit trail for both Chalkwell and the other project.
Final outcome
By the end of the Chalkwell Road job, Natalie’s team had:
- Proposed first-floor plans for each of the two flats, built from their existing DWG base and scaled correctly.
- Matching proposed elevations, coordinated with the plans, so the first-floor extensions could be understood in street and rear-garden context.
- Drawings delivered in both PDF and DWG formats, ready for further design, client presentations and planning submission.
- A clear paper trail around:
- Rights to use and modify the original drawings
- Invoices and initial payments for each address
- How payments were reconciled when references and amounts initially caused confusion
For us, this project showed how we can plug into a design team’s workflow at the proposal stage only, using their existing measured information to produce clean, consistent proposed drawings – and how good communication around rights and payments keeps multi-project relationships running smoothly.
Project Details
| Service Type | Proposed first-floor plans and elevations from client-supplied drawings |
| Time Taken | Around 1 week from instruction and payment to final drawings (plus client approvals) |
| Budget | £160–£220 |
| Location | Country hotel near Binfield, Bracknell |













