We present you the top quality projects in recent years
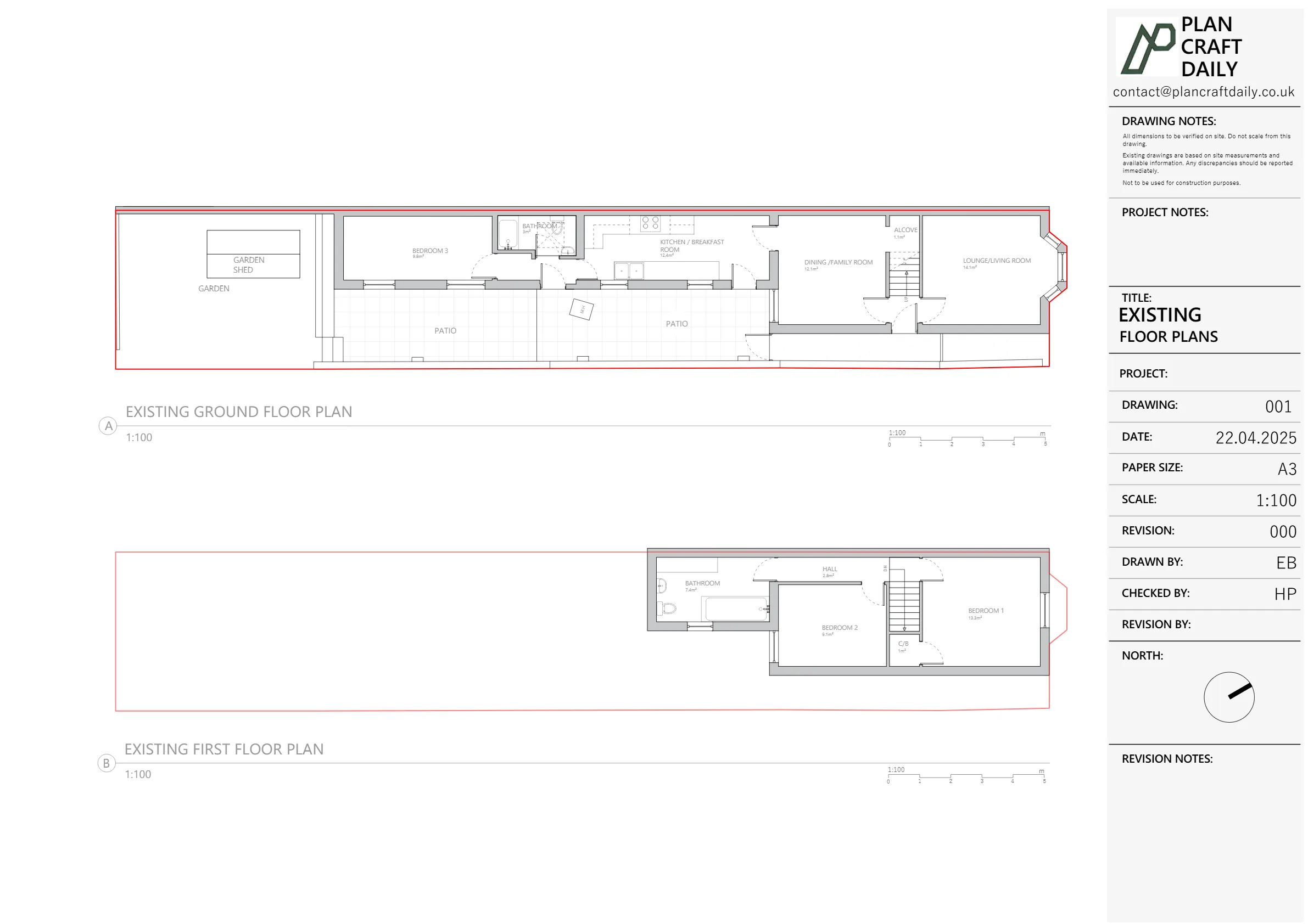
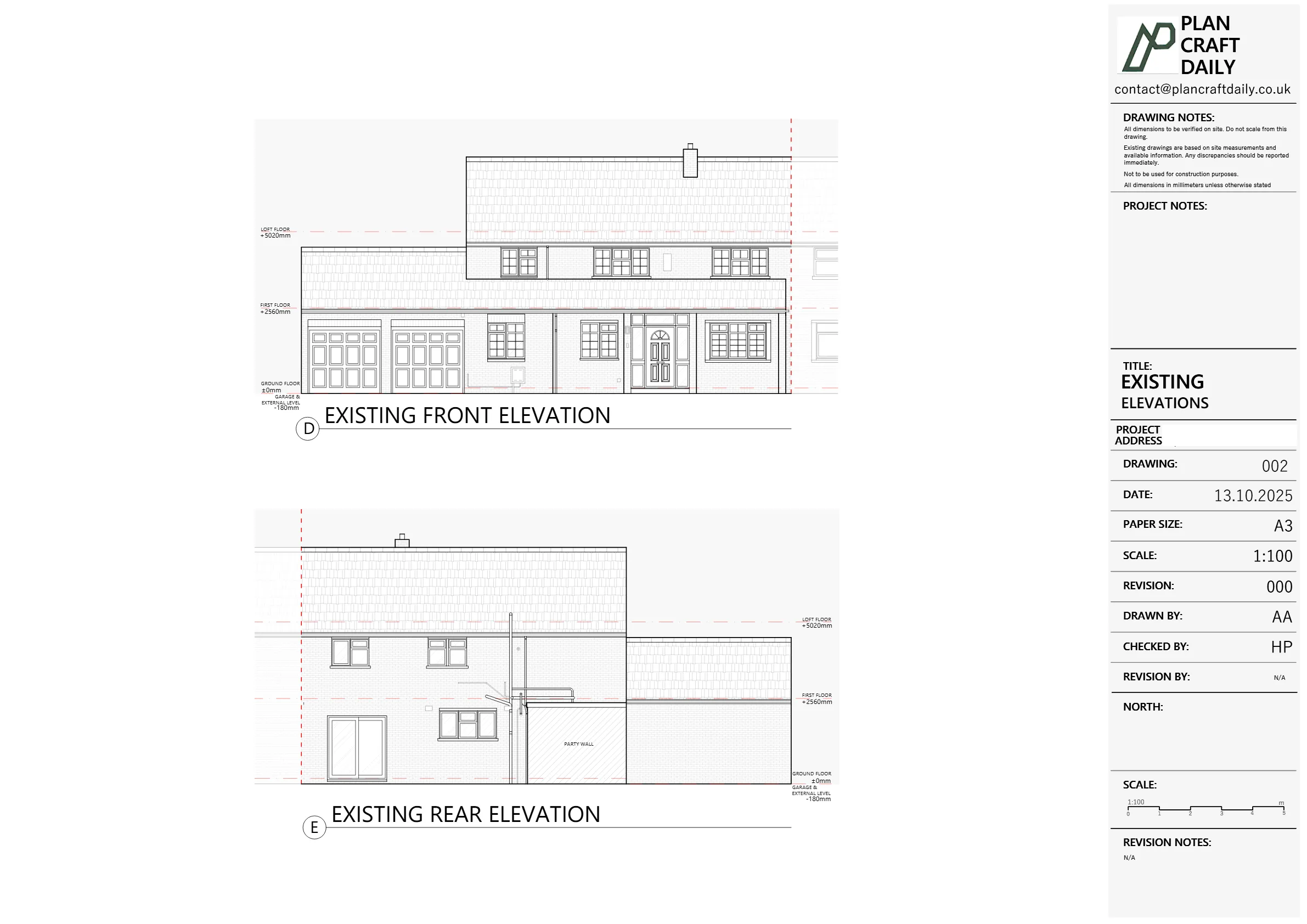
Our client in Kenley needed existing and proposed drawings for a front-porch extension to complete their planning submission. We carried out a focused site visit to verify key dimensions, then prepared accurate…

Noel, Finance Director for a local property owner in High Wycombe town centre, was referred to us by his solicitors at Blandy & Blandy. His company owned….

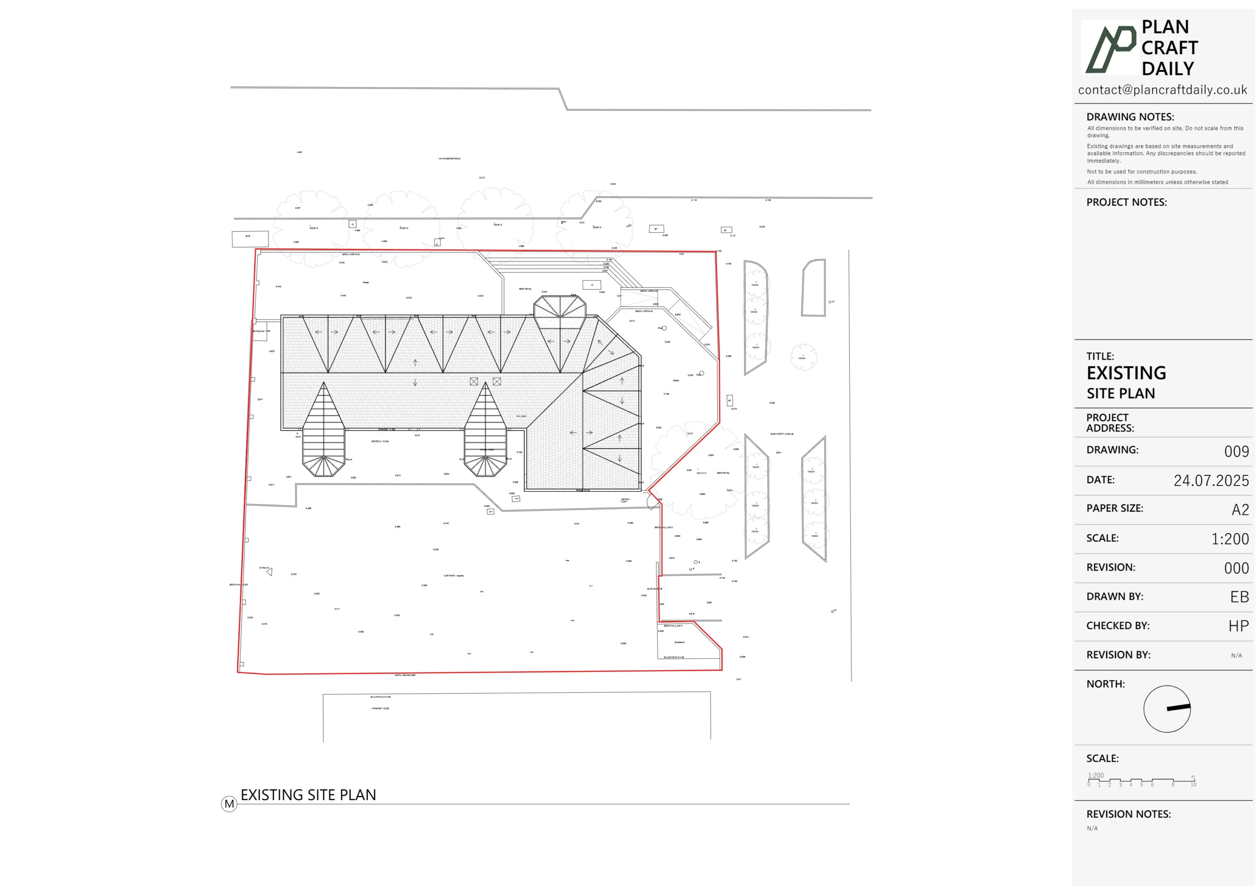
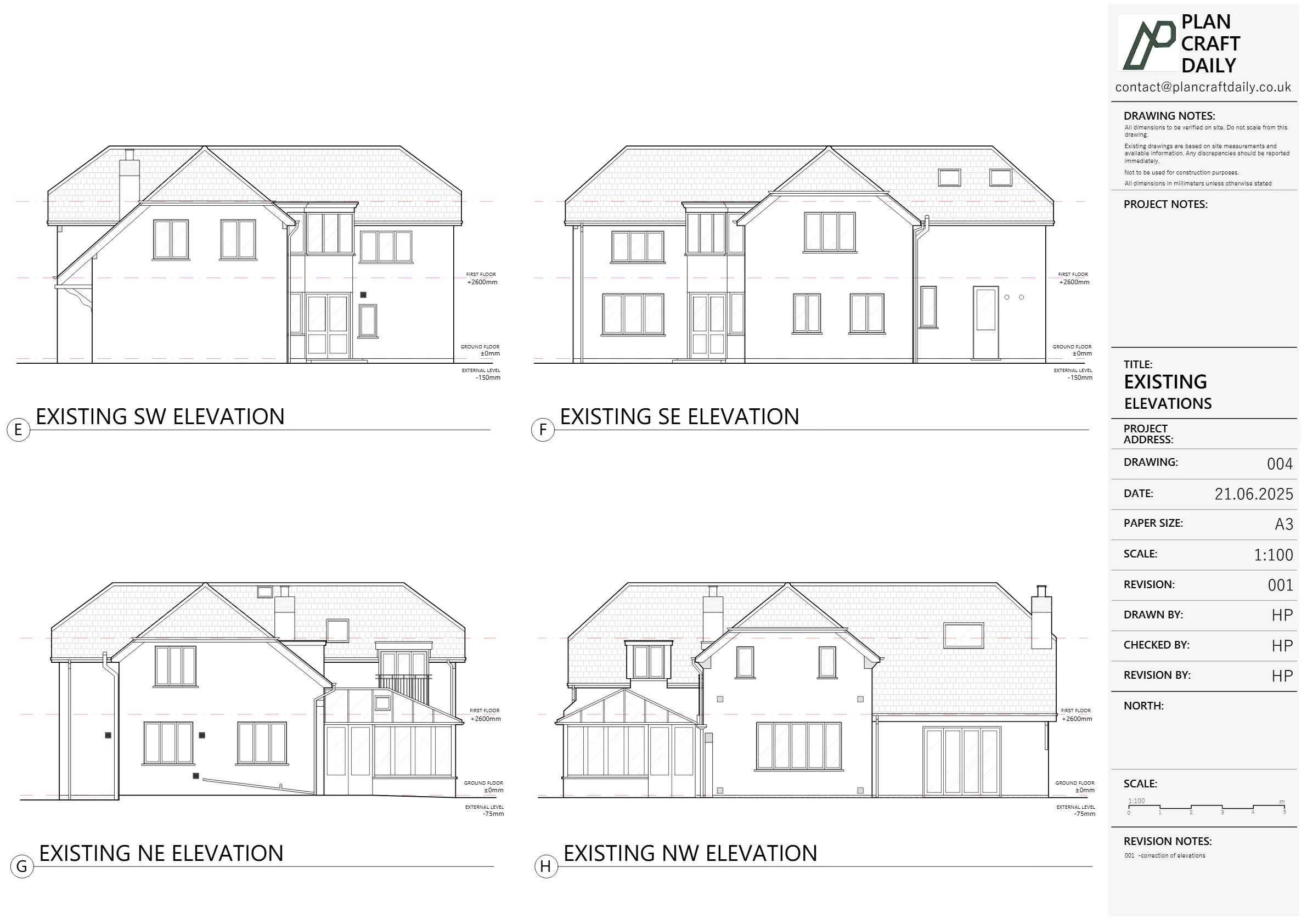
Sundeep, the owner of a country hotel on the outskirts of Bracknell, was working with architect Anupama on a programme of extensions and layout changes. They already….

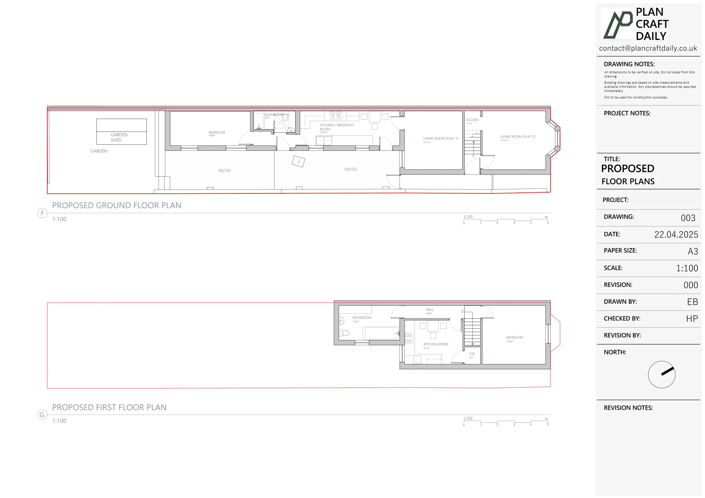
Our client in Kenley needed existing and proposed drawings for a front-porch extension to complete their planning submission. We carried out a focused site visit to verify key dimensions, then prepared accurate…

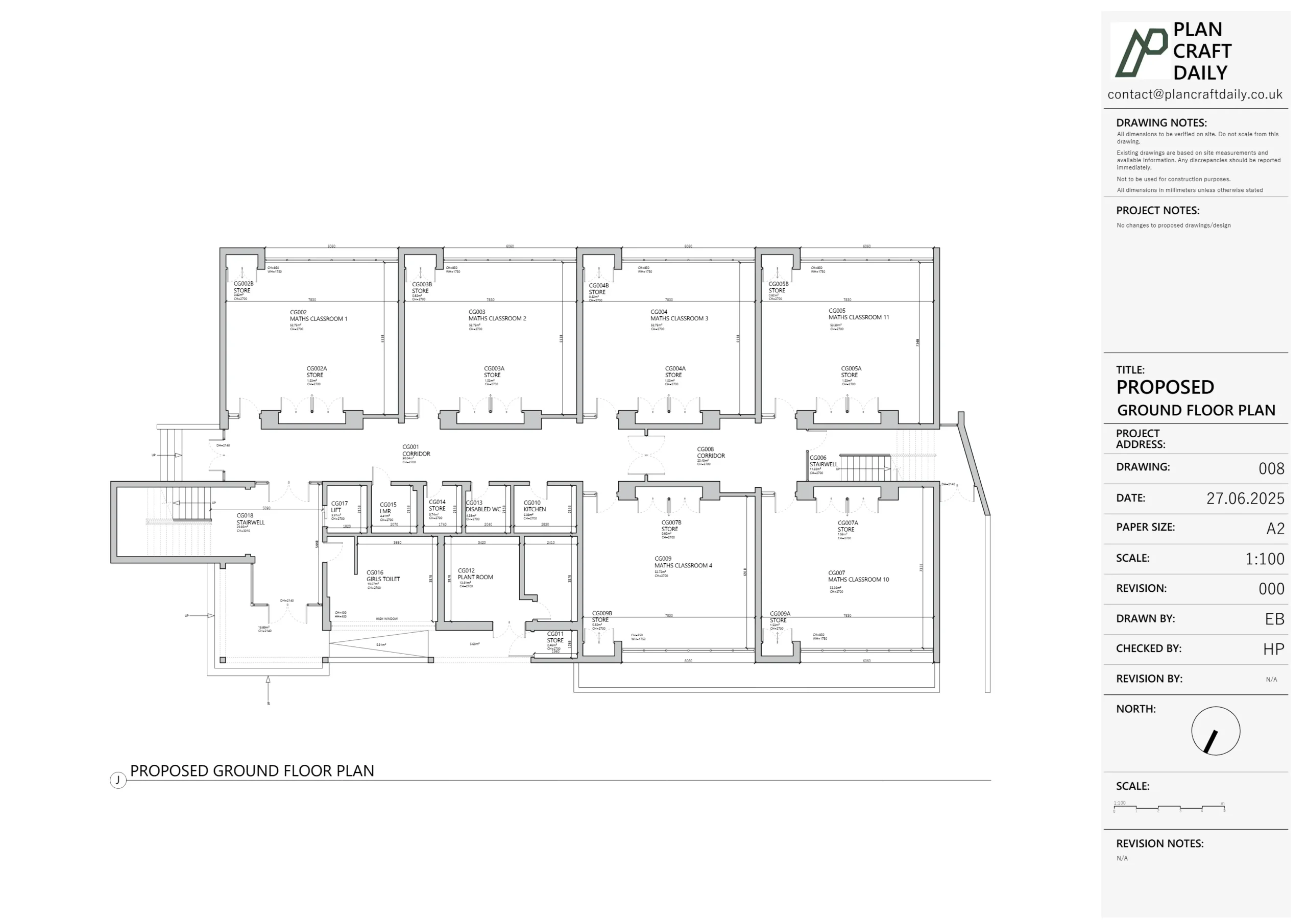
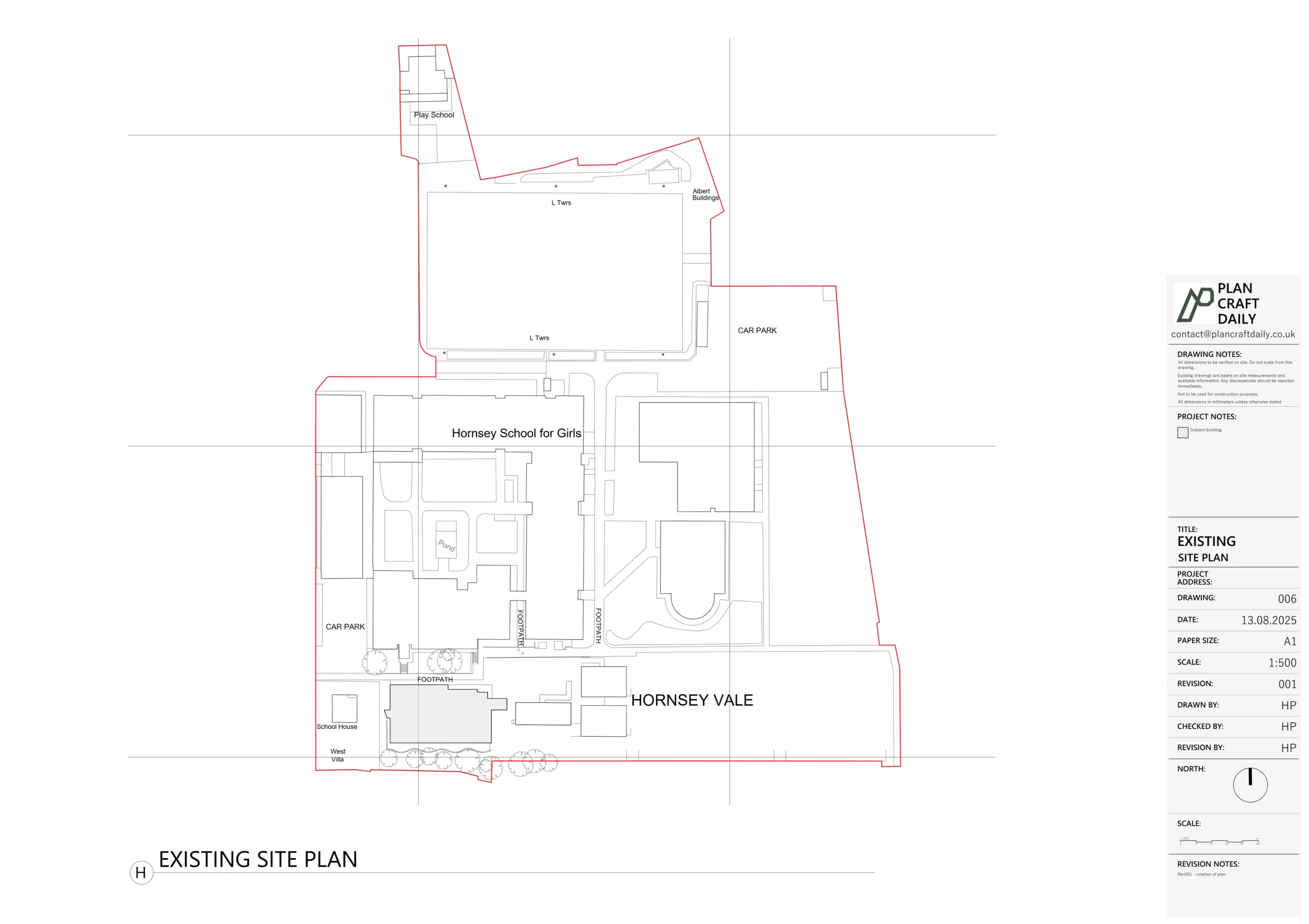
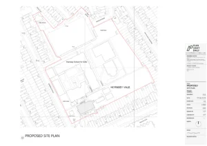
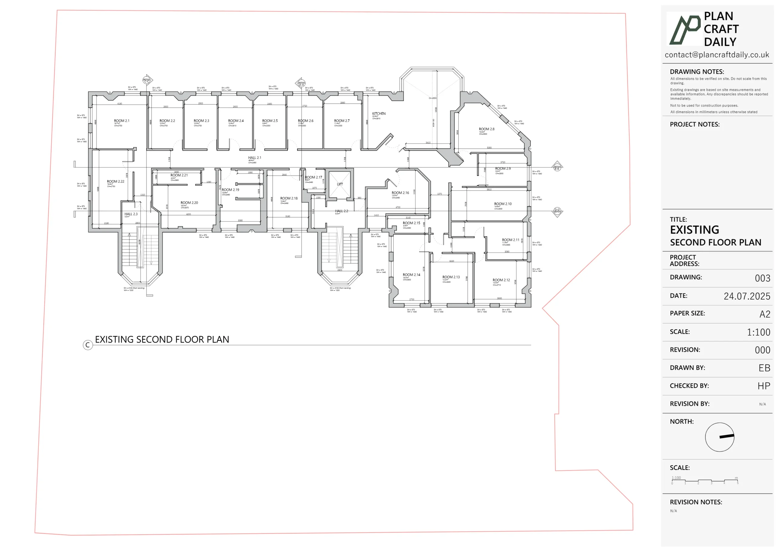
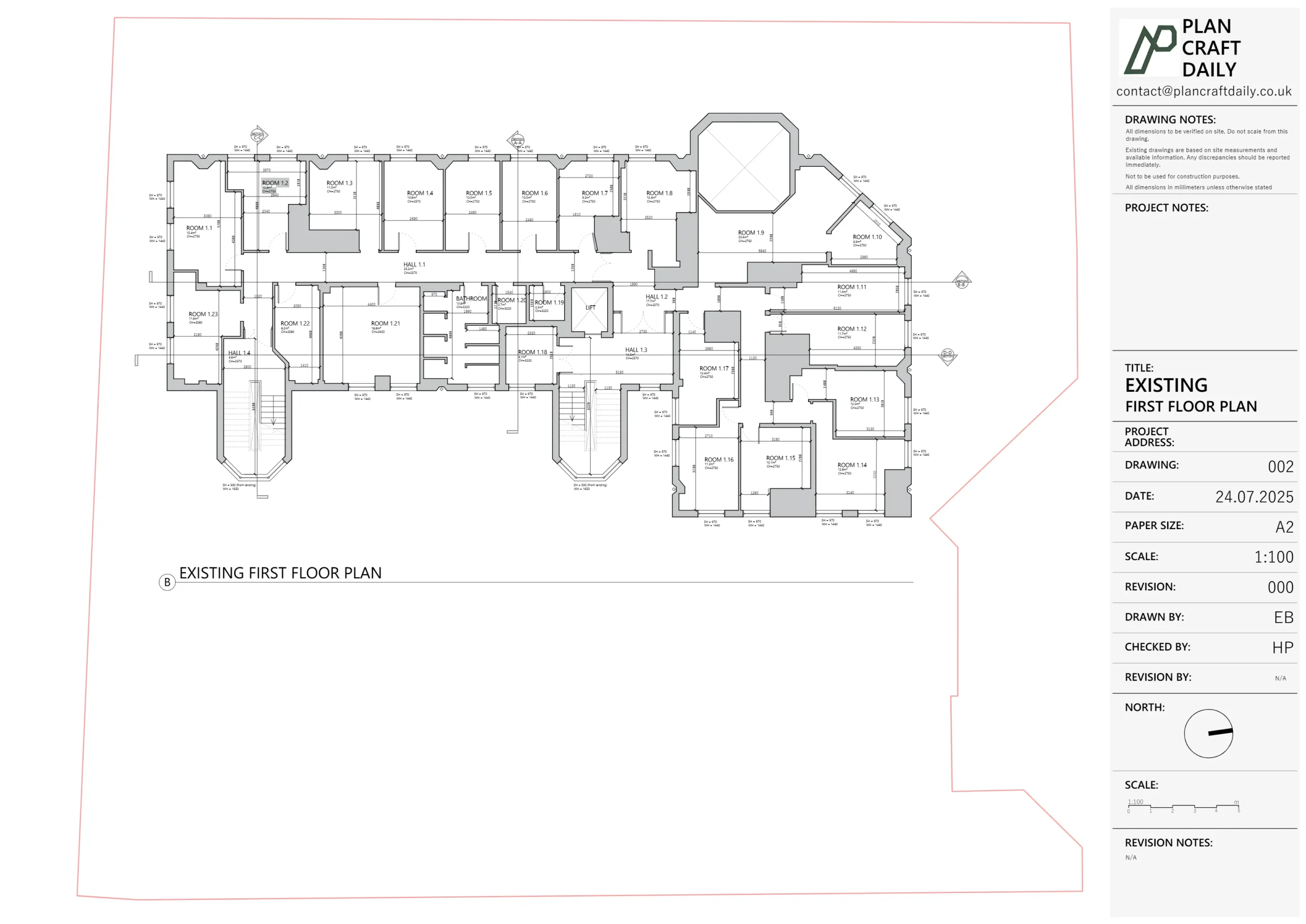
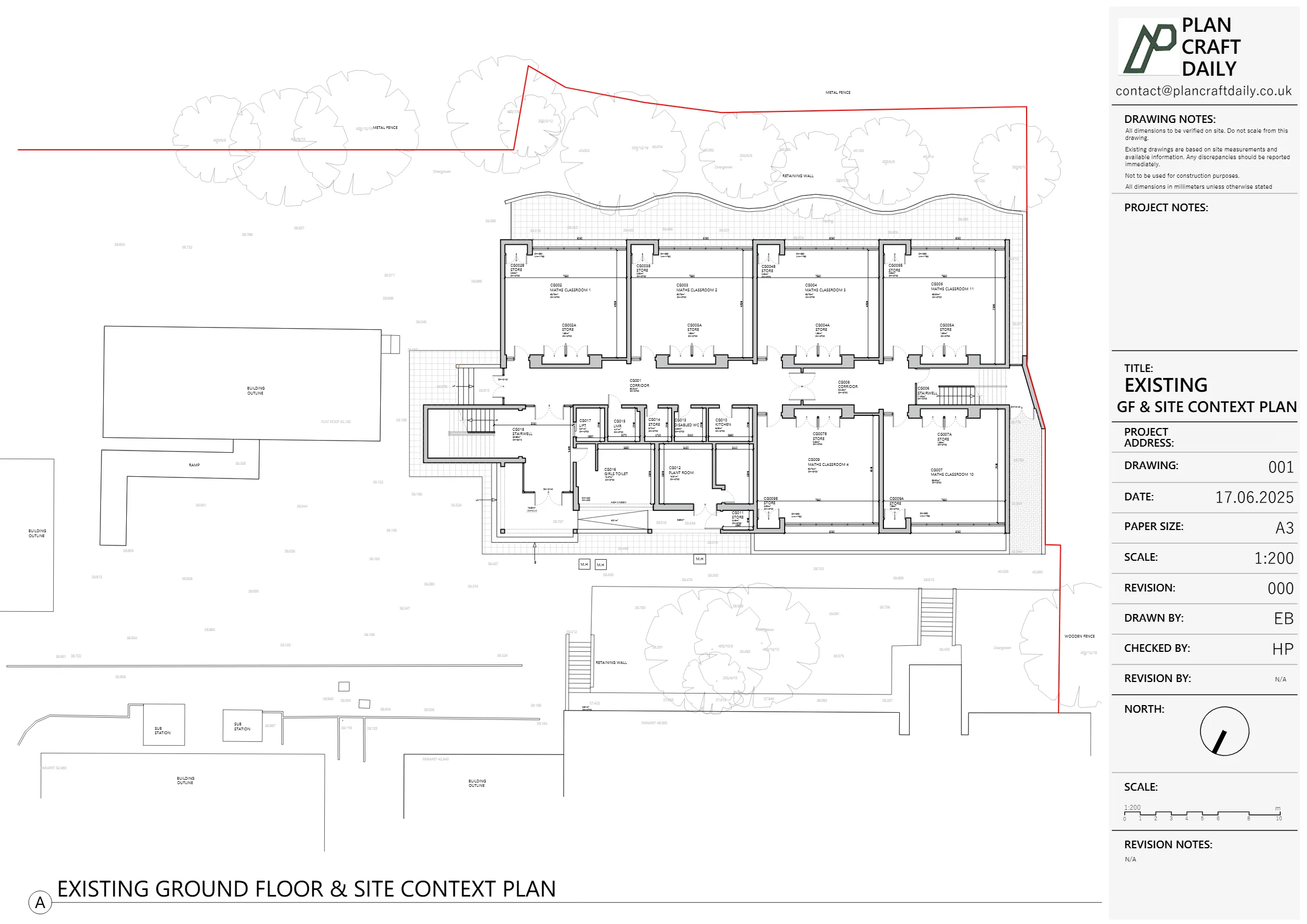
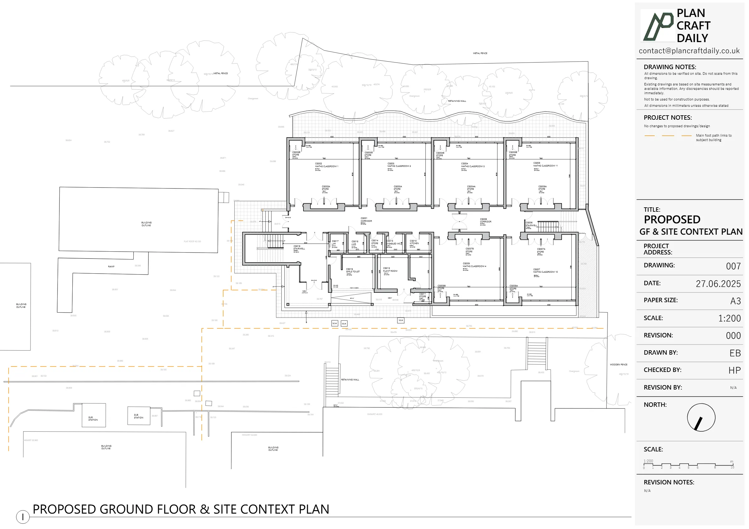
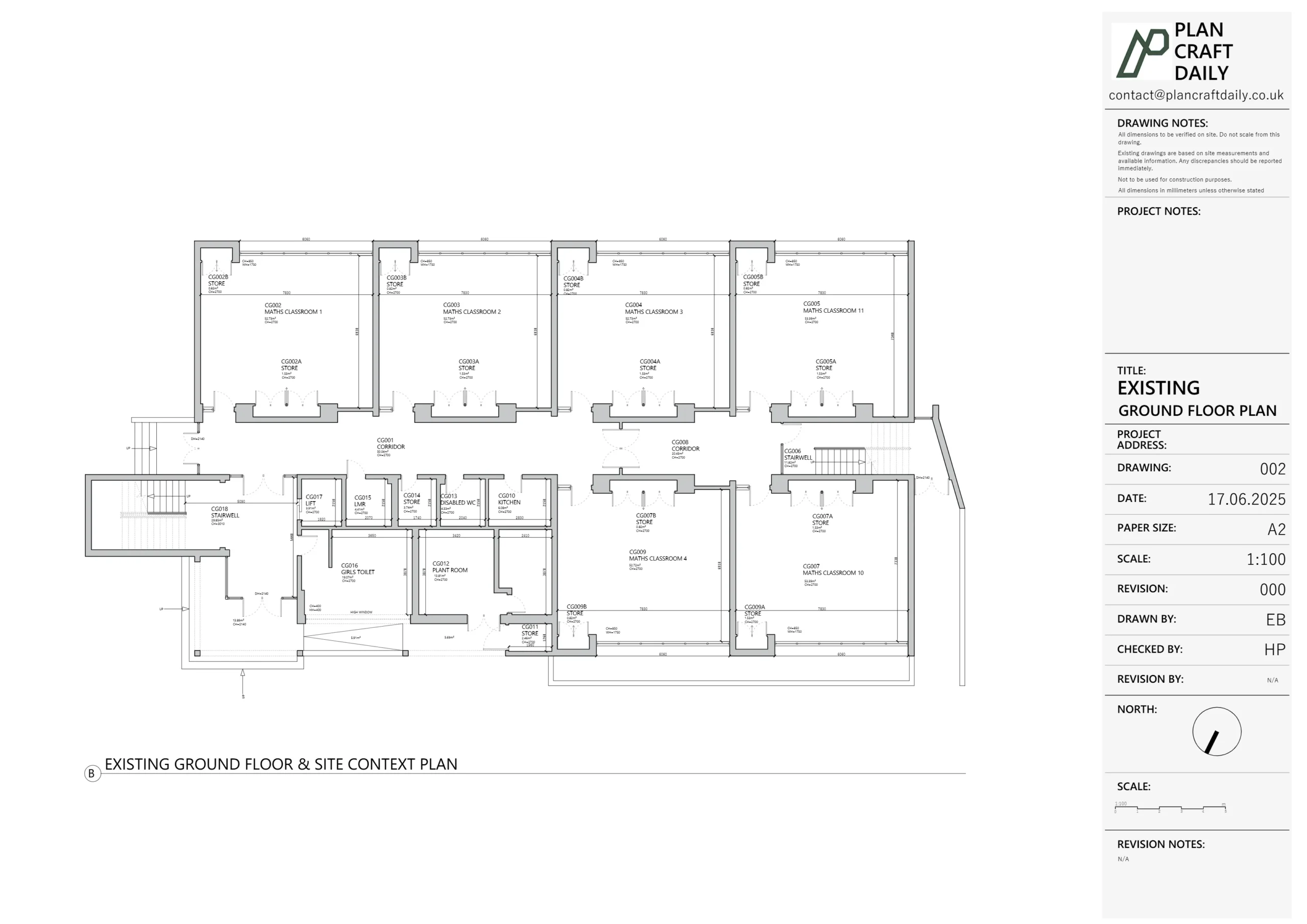
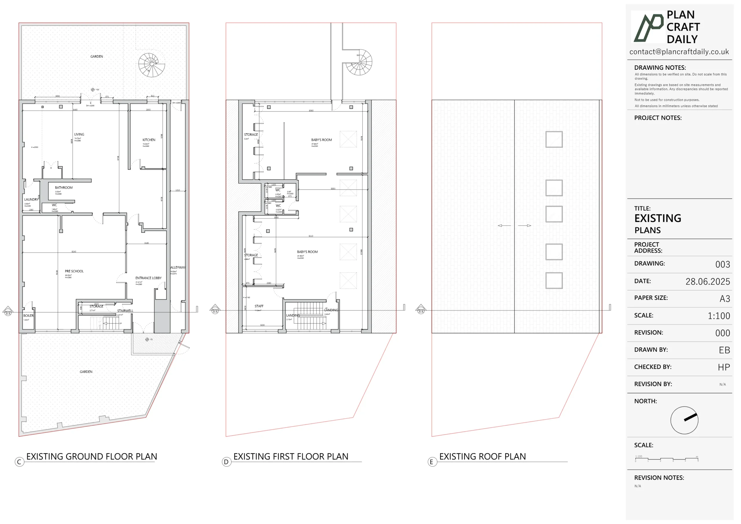
Kaushal, an architectural assistant, approached us on behalf of a client looking to redevelop a former police station in East….

Our client in Kenley needed existing and proposed drawings for a front-porch extension to complete their planning submission. We carried out a focused site visit to verify key dimensions, then prepared accurate…

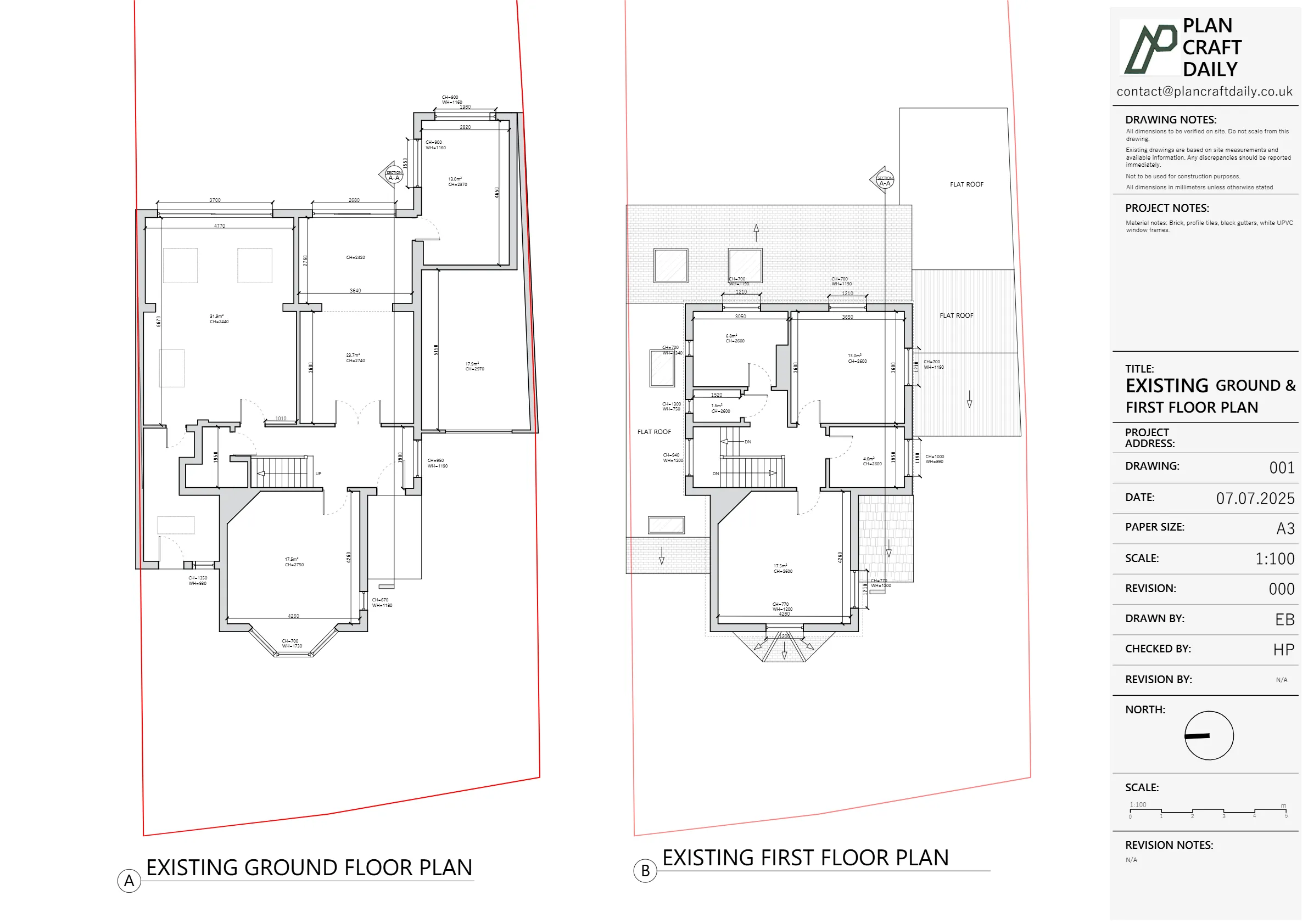
Our client in Kenley needed existing and proposed drawings for a front-porch extension to complete their planning submission. We carried out a focused site visit to verify key dimensions, then prepared accurate…

Our client in Kenley needed existing and proposed drawings for a front-porch extension to complete their planning submission. We carried out a focused site visit to verify key dimensions, then prepared accurate…

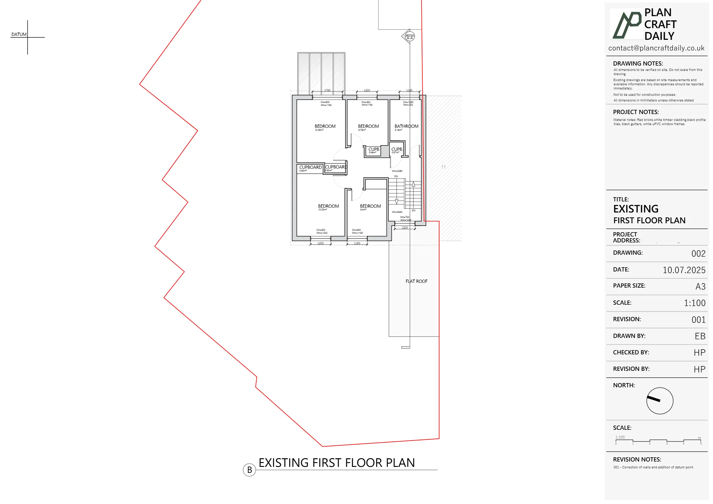
Our client in Kenley needed existing and proposed drawings for a front-porch extension to complete their planning submission. We carried out a focused site visit to verify key dimensions, then prepared accurate…

Yasar, the landlord of a busy high-street retail unit with upper flats in Upper Tooting, came to us via his architect contact, Ninad. They needed….

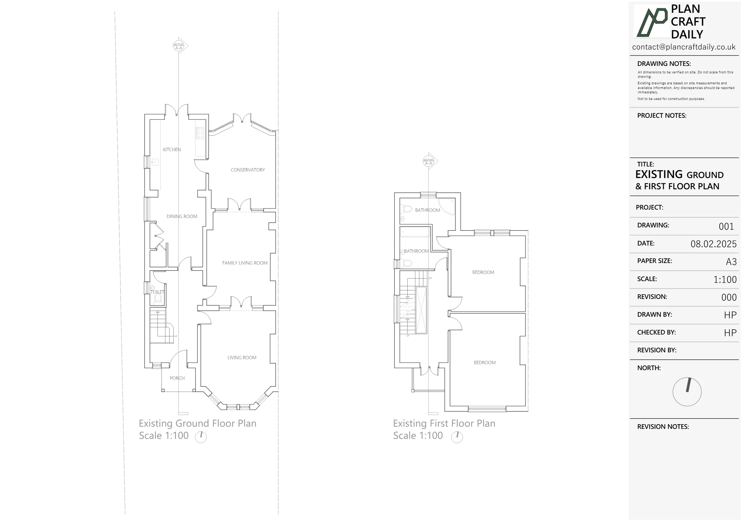
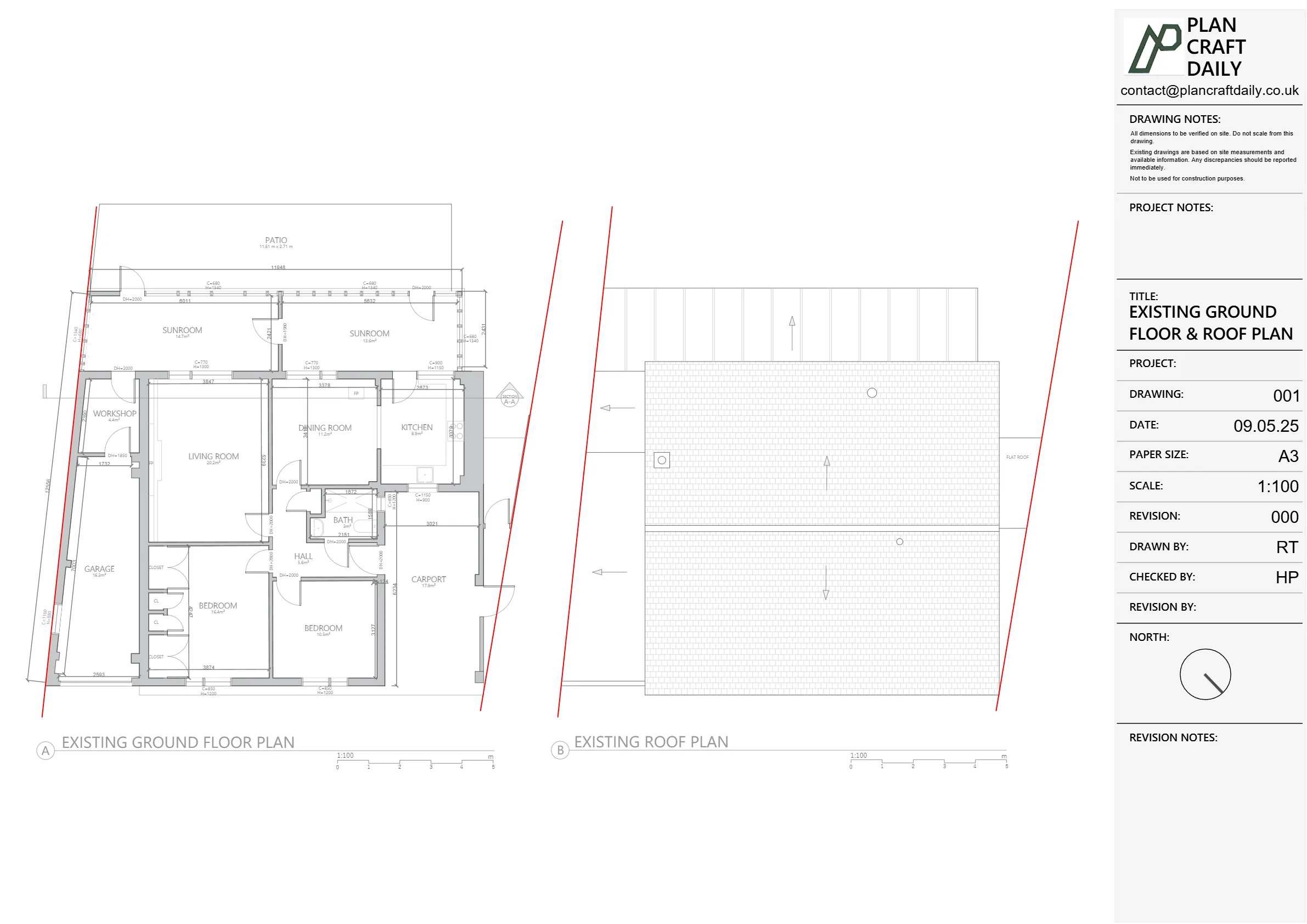
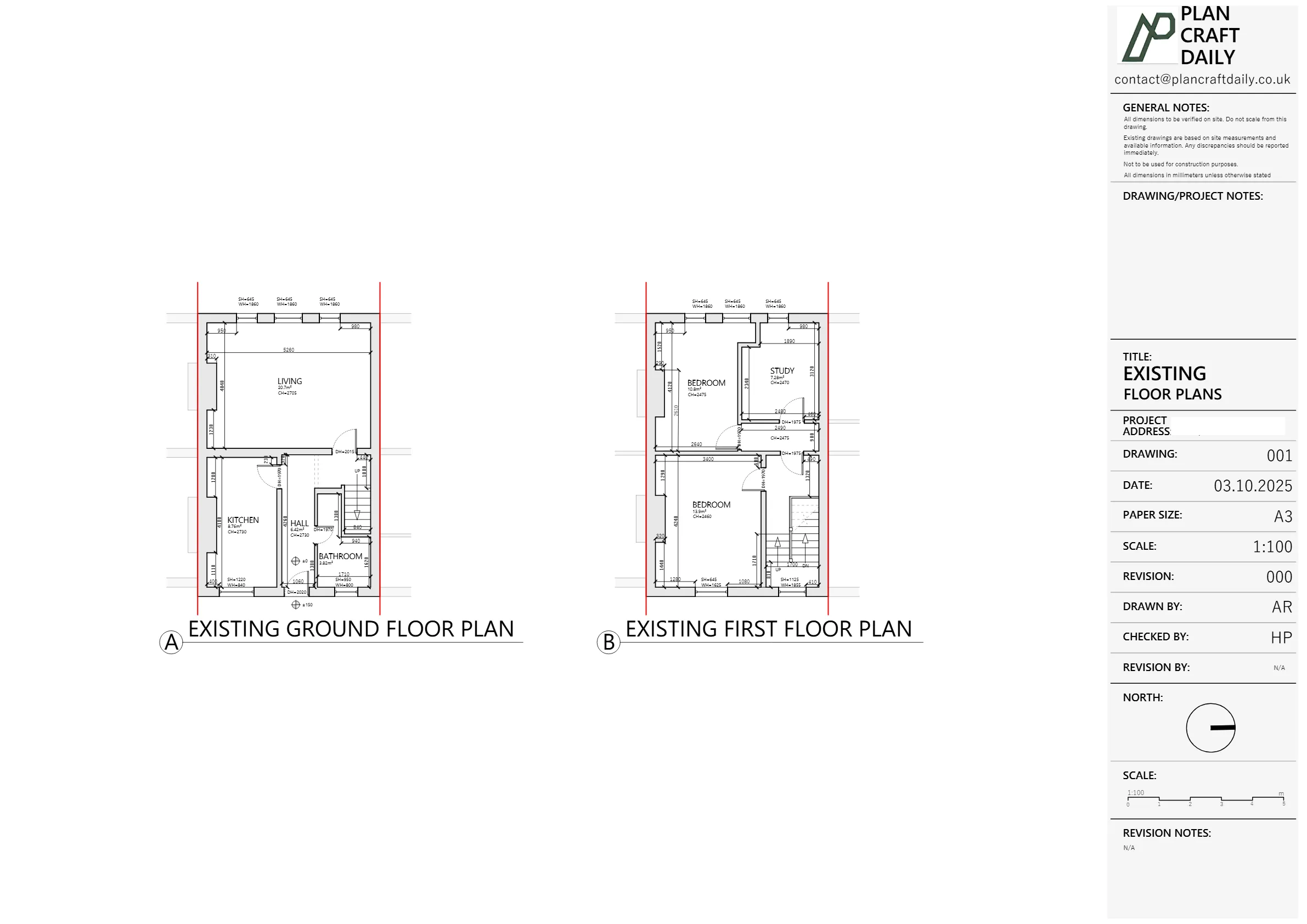
Sean came back to us needing a rapid measured survey and existing drawings for a house in Ascot, with the option to explore simple internal reconfigurations later….

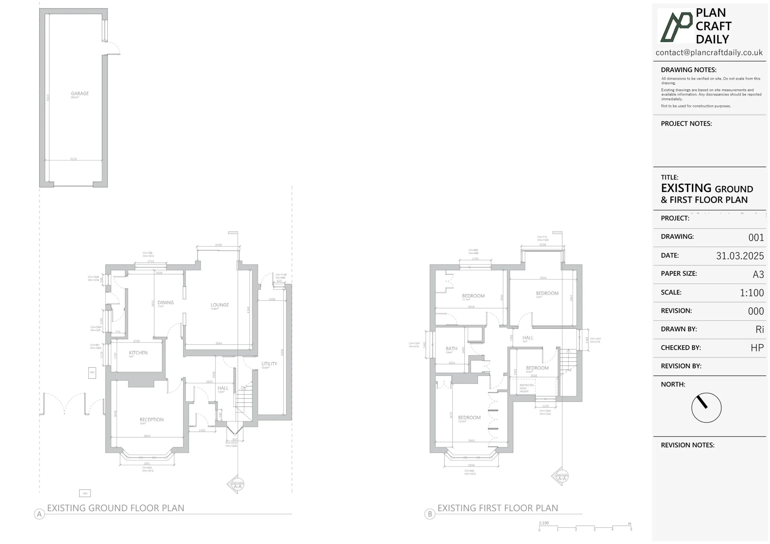
Raj and Pratibha needed a measured survey and existing drawings for a house in Romford. They also asked us to include the detached garage….

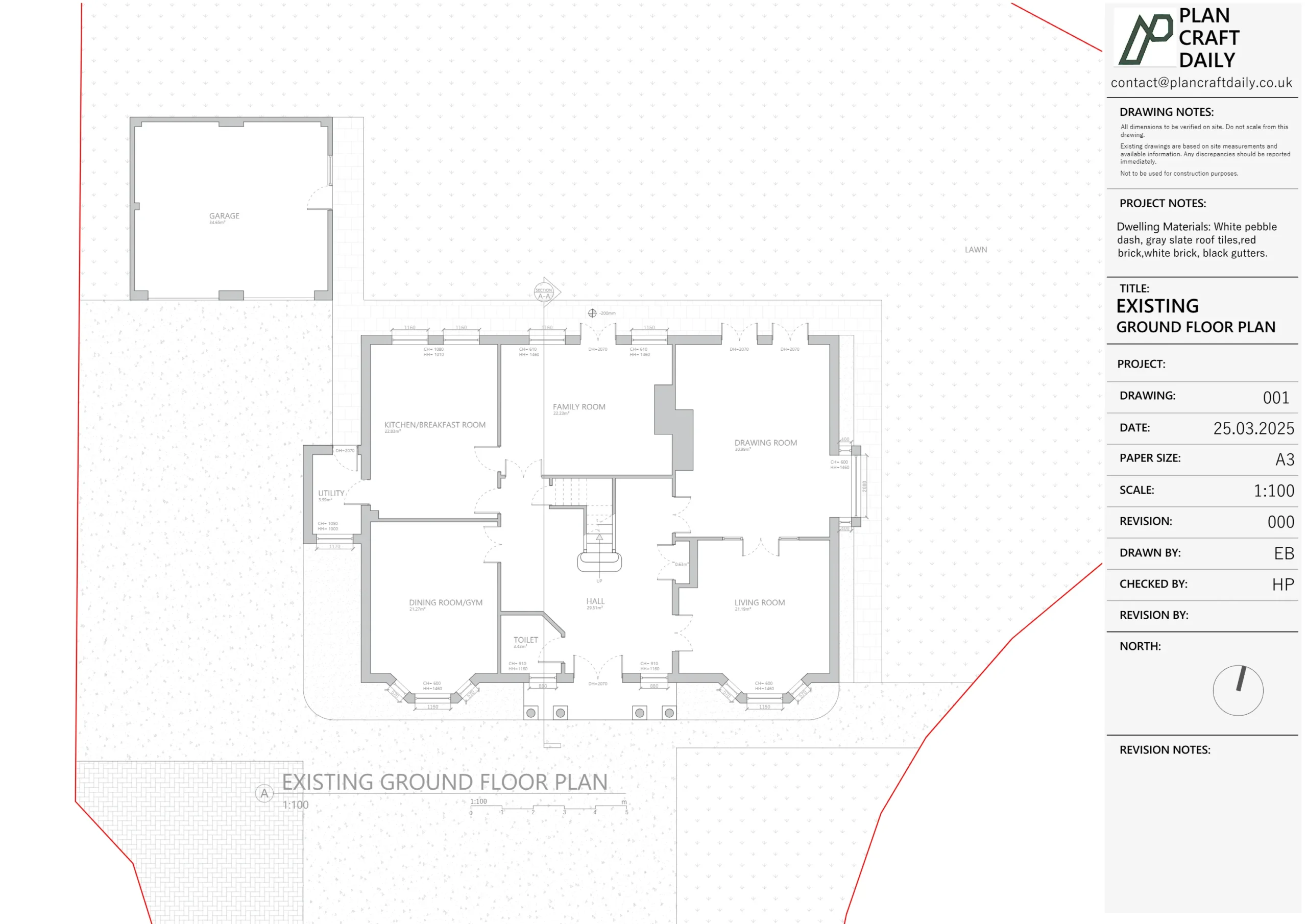
Rob, from a design practice, asked us to carry out a measured survey and prepare existing drawings for a detached house in Streatham. The drawings….

Ravi asked us for a measured survey and existing drawings for a house in West London. He needed clear plans and elevations and wanted the survey booked in quickly around his client’s availability…..

Tim asked us to carry out a full measured survey and existing drawings for a house near Tonbridge. The drawings were needed for a future planning application…..

Eric and his client Karim asked us to carry out a full measured survey of a house in Wembley, including the loft and garden. They needed accurate DWG and PDF plans….

Eric and his client Karim asked us to carry out a full measured survey of a house in Wembley, including the loft and garden. They needed accurate DWG and PDF plans….

Ravi asked us to survey a property in Richmond and produce a full set of existing drawings….

Ravi asked us to carry out a measured survey and existing drawings for a standard three-bed semi in Isleworth…..

Isaac’s team asked us to carry out a measured survey and prepare existing drawings for a house in Canvey Island, ready to support a planning application…..

Andy asked us to prepare proposed drawings for a garden room at the rear of his property. He sent a block plan, example images of the building and a sketch of the layout…..

Natalie, an architectural designer we’d already worked with on this property, came back to us for a follow-on phase. We had previously carried out the measured survey and existing drawings for her client’s home…

Emanuele, an architect working on a terraced house in South West London, approached us needing…

Ells, a partner at a small architectural practice, contacted us looking for a survey/drawings partner she could use regularly across Surrey and London….

Christian contacted us for help with an existing residential property on Priory Road in North London. He needed a full measured survey and existing drawings so he could move ahead confidently with design and planning on the house…..

Emily, a RIBA architect, approached us with a slightly different request from our usual measured surveys…..

Sheen approached us needing a measured survey and existing drawings for a semi-detached house in Avery Hill / New Eltham. Their client was planning a loft conversion…..

Architect Mark contacted us after receiving one of our service emails. He needed a detailed measured survey and existing drawing set for a house in South Woodford…..

Natalie, a customer success assistant for a residential design company, contacted us about two neighbouring first-floor flats in Sittingbourne……

An architect client, Ells, approached us after we had already worked together on another Surrey/London property. For this project, she needed a……

Neal first contacted us by phone, looking for a full measured survey and existing drawings package for a detached house in Hertford Heath. He needed……

This project came to us via an enquiry from Ninad, who needed measured surveys and existing drawings for two properties……

James, an architect contact who was referred to us by Ells, got in touch about two projects……

James, an architect we regularly support, got in touch with two new sites that needed surveys and existing drawings at roughly the same time……

Ells, an architect we work with regularly, approached us for two new residential projects at the same time….

Ells, one of our regular architect clients, approached us with two projects at the same time….

Mark, a chartered architect we’d previously worked with on a South Woodford project, got in touch about a new empty property in….

Shari, an architect acting for their company and their client in Kingston upon Thames, approached us for a measured building survey and existing drawings of a residential….

An architect client, Rob, approached us on behalf of a freeholder who owned a block of flats on a busy stretch of….

Mark, a RIBA-chartered architect we’d previously worked with on a project in South Woodford, got back in touch about a new scheme in….

Ells, an architect we work with regularly, got in touch about a small Victorian cottage in Molesey….

Kaushal, an architect, approached us for a measured survey and existing/as-built drawings of a residential property….

James, an architect based outside our usual London patch, reached out to us about a house on Hillcrest….

An architectural assistant, Kinjal, contacted us on behalf of a London practice for a measured survey and existing drawings of a property….

A client team contacted us for a measured survey and existing drawings of a semi-rural cottage near Willingale in Essex. They needed….

Ocan, a design director, contacted us about a high-street property on West Green Road in South Tottenham. His client needed….

Joe, an architectural designer, approached us for a complete measured survey and existing drawings of a domestic property in….

Simon, an architect, got in touch specifically looking for a “longer term partner for surveys and preparation….

Simon, an architect, got in touch specifically looking for a “longer term partner for surveys and preparation….

Petros, an architect and director acting for a landlord, got in touch to commission a….

Ravi is one of our longest-standing architect clients, regularly instructing us on compact residential and mixed-use projects across….

Rosie owns a tenanted flat in Norwood and asked her architect, Marco, to help with proposed works. Marco then introduced us to….

Victor got in touch because he wanted to extend and convert the loft of his family home in Chessington. Before committing to any design work….

Victor got in touch because he wanted to extend and convert the loft of his family home in Chessington. Before committing to any design work….

Marco, an architect we’d already worked with before, got in touch about a two-storey terraced house just off Boundary Road in….

James, an architect we’ve worked with before, got in touch about a semi-detached property in Woodford Green. He wanted a clean, reliable set of….

Marco, an architect we regularly collaborate with, approached us about a semi-detached house in Watford. His clients, Laureen and….

Rob, an architect client we’ve worked with on several London schemes, approached us for a very focused piece of….

Kapil, an architect client we’ve worked with for a long time, contacted us about a single residential property in South Harrow. His clients….

Ravi, a long-standing architect client, came back to us for another residential project – this time a house on Boldmere Road in Pinner. As with….

Matteo, an architect client, reached out about a detached property in Mill Hill where he needed a single, coordinated CAD base for both building….

Ravi is one of our longest-standing trade clients. He regularly instructs us to produce “as per usual” existing plans and elevations for houses he is redeveloping….

Anthony owns a one-bedroom flat in Wiltshire but lives in Surrey. His solicitor arranged a desktop lease-extension valuation, and the….

Natalie, a customer success assistant for a residential design company, contacted us about two neighbouring first-floor flats in….

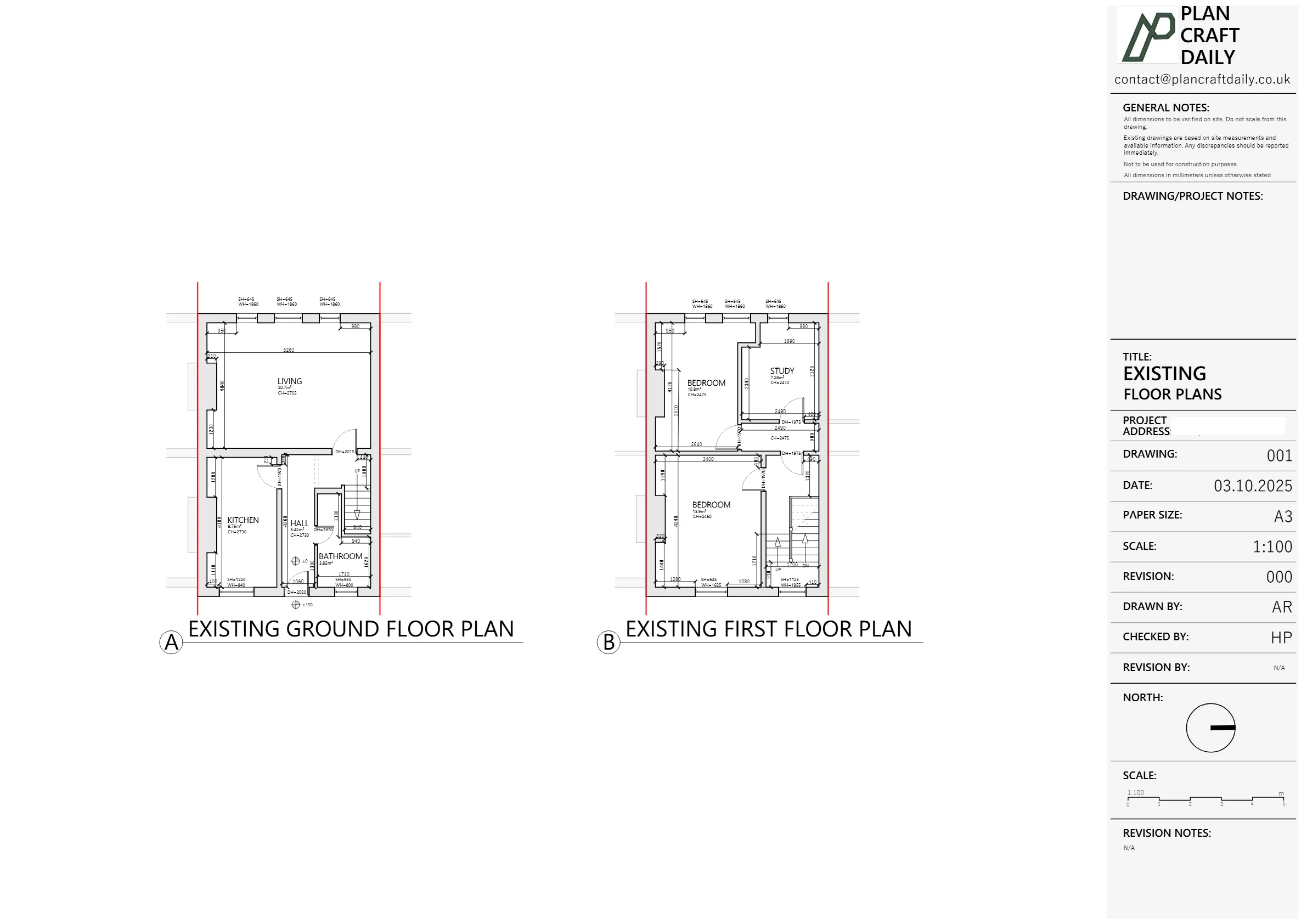
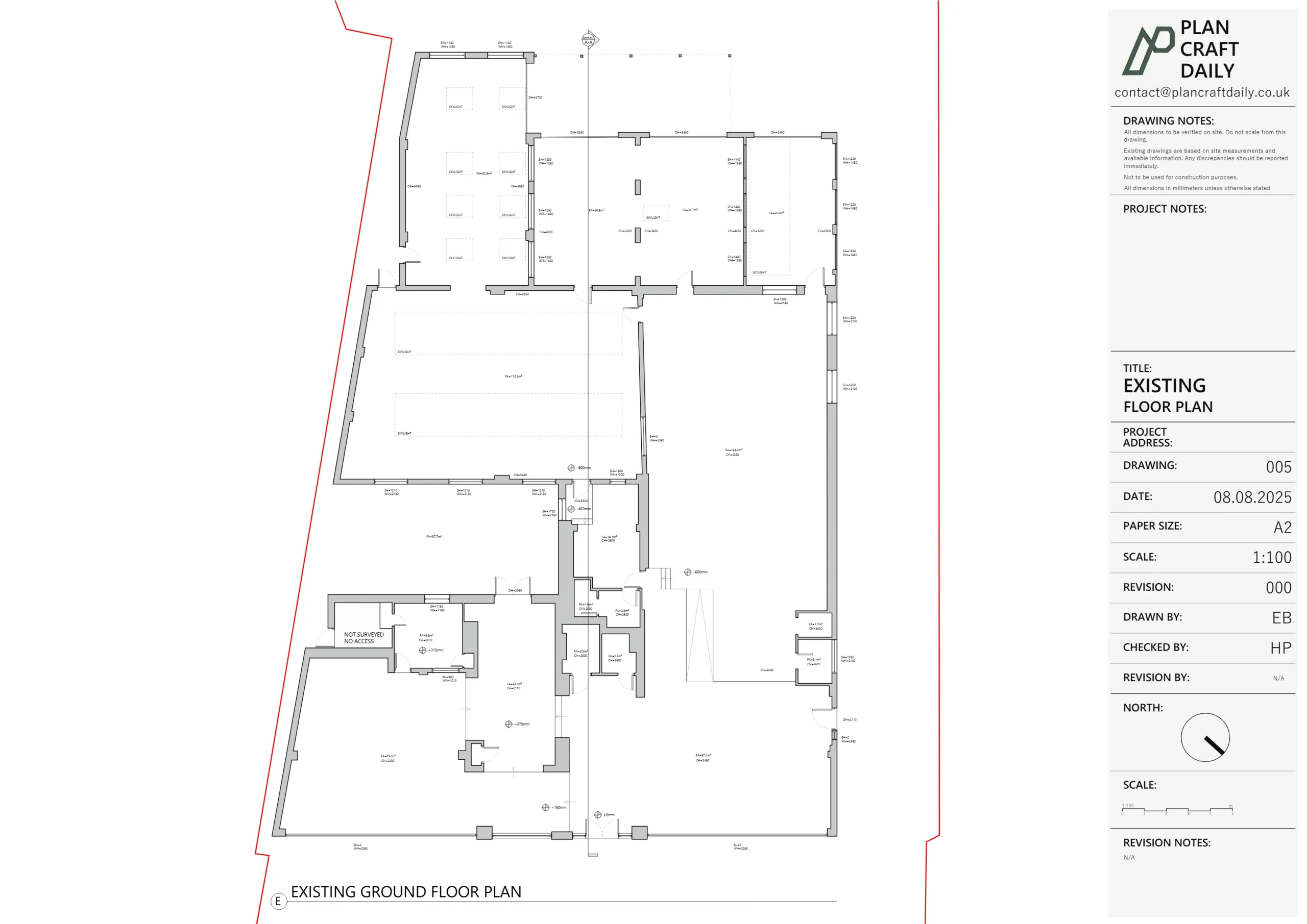
Anna came back to us after a previous project, needing a very detailed survey for a large house in Twickenham. Her client wanted full plans, one main section…..

Find a team of surveyors and cad technician you can rely on. Every day, we build trust through communication, transparency, and results.

| Service Type | Measured survey, existing drawings (plans, elevations, section) in DWG & PDF |
| Time Taken | 1–2 weeks |
| Budget | £450–£550 |
| Location | Durban Road, Norwood, South London |
| Service Type | Land Registry–compliant lease / transfer plan (no site survey) |
| Time Taken | 1 week |
| Budget | £150–£300 |
| Location | Temple End, High Wycombe (Buckinghamshire) |

| Service Type | Full measured survey with 3D scanning, existing drawings & car park plan |
| Time Taken | Around 1–2 weeks |
| Budget | £900–£1,300 |
| Location | Country hotel near Binfield, Bracknell |

| Service Type | Measured building survey, topographical survey, existing drawings & 3D scan links |
| Time Taken | 2–3 weeks |
| Budget | £2800–£3800 |
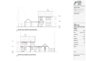
| Location | Former police station on the Isle of Dogs, East London |

| Service Type | Measured survey & existing drawings (retail ground floor + upper floors & loft) |
| Time Taken | Around 2–3 weeks |
| Budget | £600–£700 |
| Location | Upper Tooting Road, South London |

| Service Type | Measured Survey and Existing Drawings |
| Time Taken | 4-8 working days |
| Budget | £350-£700 |
| Location | Ascot, Berkshire |

| Service Type | Measured Survey and Existing Drawings |
| Time Taken | 4-8 working days |
| Budget | £250–£400 |
| Location | Romford, East London |

| Service Type | Measured Survey and Existing Drawings |
| Time Taken | 4-8 working days |
| Budget | £450–£700 |
| Location | Streatham, South London |

| Service Type | Measured Survey and Existing Drawings |
| Time Taken | 6–8 working days |
| Budget | £400–£650 |
| Location | Ealing, West London |

| Service Type | Measured Survey and Existing Drawings |
| Time Taken | 5–7 working days |
| Budget | £400–£550 |
| Location | Tonbridge, Kent |

| Service Type | Measured Survey, Existing Drawings + Topographical Survey & 3D Scan |
| Time Taken | Around 10–15 working days (including topo and revisions) |
| Budget | £800–£1250 |
| Location | Wembley, North West London |

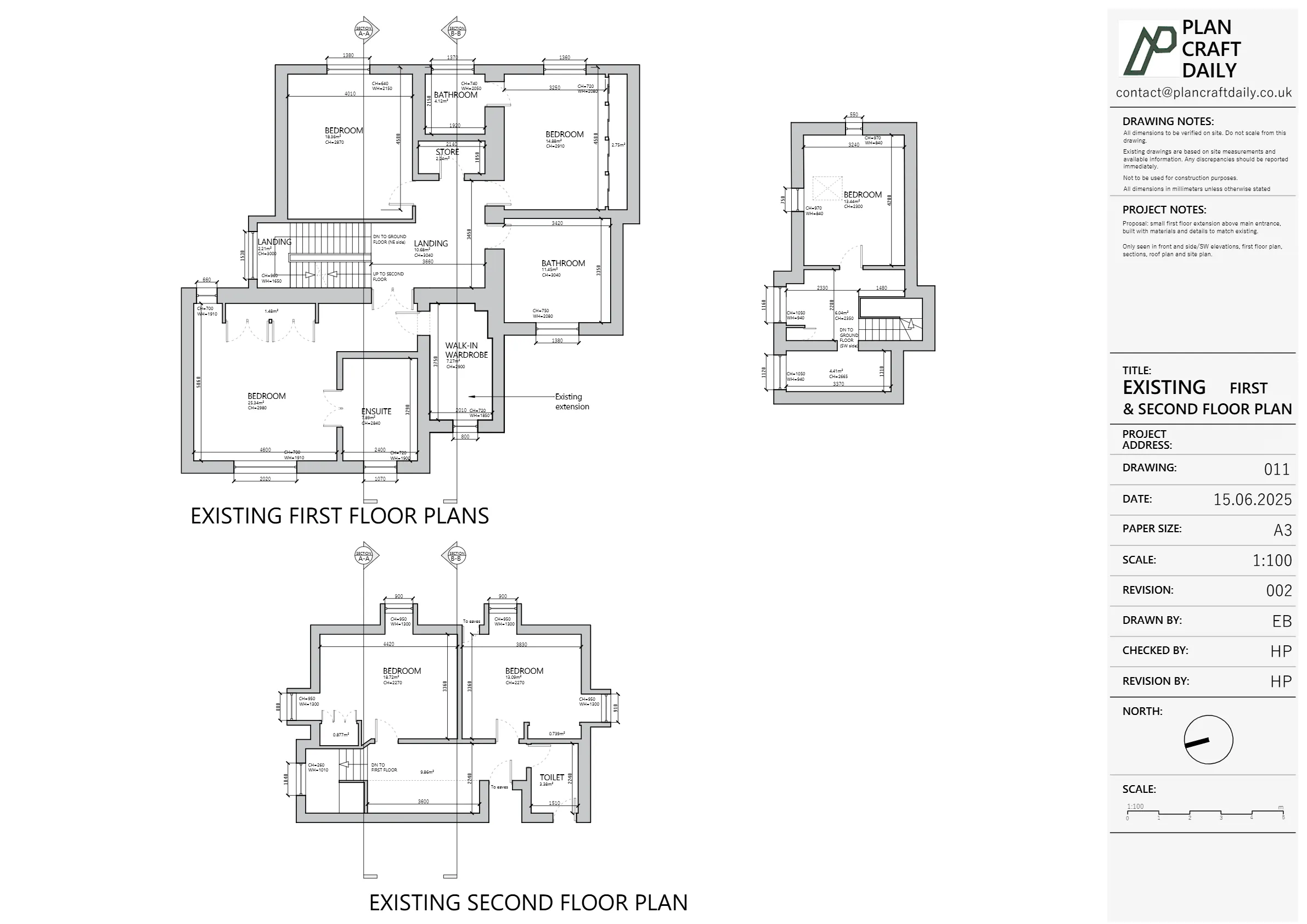
| Service Type | Measured Survey, Pre-Existing & Existing Drawings + 3D Scan (planning use) |
| Time Taken | 7–12 working days (including revisions) |
| Budget | £750–£980 |
| Location | Kenley, South London |

| Service Type | Measured Survey and Existing Drawings + 3D Scans |
| Time Taken | 7–12 working days (including revisions) |
| Budget | £600–£850 |
| Location | Richmond, South West London |

| Service Type | Measured Survey, Existing Drawings + 3D Scan |
| Time Taken | 5–10 working days |
| Budget | £750–£950 |
| Location | Isleworth, West London |

| Service Type | Measured Survey and Existing Drawings |
| Time Taken | 8–15 working days |
| Budget | £400–£700 |
| Location | Canvey Island, Essex |

| Service Type | Proposed Drawings for Garden Room (planning use) |
| Time Taken | 5–10 working days |
| Budget | £80–£200 |
| Location | Walton-on-Thames, Surrey |

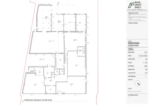
| Service Type | Proposed Drawings for single-storey rear & side extension and new front porch |
| Time Taken | Around 2 weeks from brief to final proposed pack (plus client review time) |
| Budget | £150 – £250 (including two rounds of revisions) |
| Location | Watford |

| Service Type | Measured survey and existing drawings (plans, elevations and section) |
| Time Taken | Around 1–2 weeks from survey to final drawings (plus client review time) |
| Budget | £400–£550 |
| Location | Mitcham |

| Service Type | Measured Survey, Existing Plans, Elevations, Section & Drainage Mark-Up |
| Time Taken | Around 1–2 weeks from survey booking to final drawing issue (including revisions) |
| Budget | £400–£500 |
| Location | Weston Park area, Thames Ditton |

| Service Type | Measured Survey and Existing Drawings (Plans, Elevations and Section) |
| Time Taken | Around 1–1.5 weeks from survey to final drawings (staged issue) |
| Budget | £400–£520 |
| Location | Priory Road, North London |

| Service Type | 2D CAD Conversion – Existing Floor Plans to DWG (to scale) |
| Time Taken | 1–2 working days from confirmation to final DWG issue |
| Budget | £150–£220 |
| Location | Lorne Street area, Reading |

| Service Type | Measured survey and existing drawings (plans, elevations, section) for a loft conversion |
| Time Taken | Around 1 week from survey booking to final drawings (staged issue) |
| Budget | £400–£550 |
| Location | Restons Crescent / Avery Hill, New Eltham area (SE9) |

| Service Type | Measured survey, existing plans, elevations, roof plan and section (incl. 1/3 of neighbouring properties) |
| Time Taken | Around 1-2 weeks from first enquiry to final drawings (with staged delivery) |
| Budget | £500–£670 |
| Location | South Woodford (East London) |

| Service Type | Proposed first-floor plans and elevations from client-supplied drawings |
| Time Taken | Around 1 week from instruction and payment to final drawings (plus client approvals) |
| Budget | £160–£220 |
| Location | Sittingbourne |

| Service Type | Measured survey, existing plans, elevations, section and drainage mark-up |
| Time Taken | Around 1–2 weeks from survey to final drawings (including revisions) |
| Budget | £400–£580 |
| Location | Dennis Park, Wimbledon Chase |

| Service Type | Measured Survey and Existing Drawings (Floor Plans with Roof, Front/Rear/Side Elevations) |
| Time Taken | Around 1–2 weeks |
| Budget | £390–£520 |
| Location | Woodland Road (Hertfordshire) |

| Service Type | Measured Survey, Existing Drawings (Plans with Roof, Elevations & One Section), 3D Scan |
| Time Taken | Around 2 weeks |
| Budget | £490–£600 |
| Location | The Crescent |

| Service Type | Measured Survey, Existing Drawings (loft conversion & internal alterations), 3D Scan & Photographic Pack |
| Time Taken | Around 1–2 weeks |
| Budget | £500 – £650 |
| Location | Surrey, Greater London |

| Service Type | Measured Survey, Existing Drawings, Internal Reconfiguration Support, 3D Scan |
| Time Taken | 1–2 weeks |
| Budget | £550–£690 |
| Location | Cul-de-sac near Thames Ditton |

| Service Type | Measured Survey, Existing Ground-Floor Plans, Elevations, Section & Drainage Mapping + 3D Scan |
| Time Taken | Around 1–2 weeks |
| Budget | £390–£550 |
| Location | South West London |

| Service Type | Measured Survey, Existing Drawings, Site Plan & 3D Scan |
| Time Taken | Around 1–2 weeks |
| Budget | £700–£850 |
| Location | Ongar, Essex |

| Service Type | Measured Building Survey, Existing Drawings, 3D Scan + Follow-up Tree Location & Circumference Plan |
| Time Taken | Around 2–3 weeks |
| Budget | £700–£850 |
| Location | Buckingham Road, Kingston upon Thames |

| Service Type | External Measured Survey, Elevation & Site Plan Drawing Pack for Retrospective Planning |
| Time Taken | 2 weeks |
| Budget | £400–£500 |
| Location | Brockley Road, Brockley |

| Service Type | Measured Building Survey, Existing Drawings, Site Plan & 3D Scan |
| Time Taken | 2 weeks |
| Budget | £650–£800 |
| Location | Ongar, Essex |

| Service Type | Measured survey, existing plans & elevations, section, manholes and boundary mapping |
| Time Taken | 2 weeks |
| Budget | £500–£650 |
| Location | Molesey, Surrey |

| Service Type | Measured building & site survey, existing drawings (site plan, floor plans, roof plan, elevations, sections) |
| Time Taken | 2 weeks |
| Budget | £900–£1,200 |
| Location | Borehamwood, Hertfordshire |

| Service Type | Measured Building Survey, Existing Floor Plans, All External Elevations & Outline Section |
| Time Taken | 1 week |
| Budget | £600–£750 |
| Location | Hillcrest Avenue, Market Harborough (Leicestershire) |

| Service Type | Measured building survey, existing drawings (incl. loft under construction) |
| Time Taken | 1-2 week |
| Budget | £700–£850 |
| Location | Wembley, North-West London |

| Service Type | Measured building survey, existing drawings, garage & boundary mapping, key trees recorded |
| Time Taken | 1–2 weeks |
| Budget | £550–£650 |
| Location | Rural cottage near Willingale, Essex |

| Service Type | Measured survey & existing drawings (plans and elevations) |
| Time Taken | 1 week |
| Budget | £500–£650 |
| Location | West Green Road, South Tottenham, North London |

| Service Type | Measured building survey, topographical survey & full existing drawings (plans, elevations, section, levels, trees) |
| Time Taken | 1-2 weeks |
| Budget | £1,200–£1,500 |
| Location | Beckenham, south-east London |

| Service Type | Measured survey & existing drawings (GF, FF, elevations, with optional roof & garage plans) |
| Time Taken | 1 week |
| Budget | £500–£650 |
| Location | Tring, Hertfordshire |

| Service Type | Measured survey & existing floor plans only (two-storey flat above shop) |
| Time Taken | 1 week |
| Budget | £400–£500 |
| Location | Wood Green, North London |

| Service Type | Measured survey, existing floor plans & elevations, including home-office outbuilding |
| Time Taken | 1–2 weeks |
| Budget | £700–£850 |
| Location | Upminster, East London (HMO) |

| Service Type | Measured survey, existing drawings & site photography |
| Time Taken | 1 week |
| Budget | £800–£950 |
| Location | Gloucester Road, West London |

| Service Type | Measured survey, existing drawings (plans, elevations, section) in DWG & PDF |
| Time Taken | 1–2 weeks |
| Budget | £450–£550 |
| Location | Durban Road, Norwood, South London |

| Service Type | Measured survey + full existing drawings (plans, elevations, section, site plan) in DWG & PDF |
| Time Taken | 1–2 weeks |
| Budget | £600–£700 |
| Location | Hemsby Road, Chessington, South-West London |

| Service Type | Measured survey + existing drawings (first-floor plan, roof plan, front & rear elevations, section) |
| Time Taken | Roughly 2 weeks |
| Budget | £350–£450 |
| Location | Southend Road, East Ham, East London |

| Service Type | Measured survey + existing drawings (2 floor plans, roof plan, front & rear elevations, long section) |
| Time Taken | Around 2 weeks |
| Budget | £750–£850 |
| Location | Boundary Road, Wood Green, North London |

| Service Type | Measured survey + existing drawings (GF plan, FF plan, 3 elevations, outline section) |
| Time Taken | Around 1–2 weeks |
| Budget | £500–£600 |
| Location | Woodford Green |

| Service Type | Measured survey & existing drawings (2 floor plans, roof plan, 3 elevations, long section incl. loft) |
| Time Taken | 1–2 weeks |
| Budget | £800–£900 |
| Location | Watford |

| Service Type | Targeted measured survey – rear elevation & full-height section (incl. first-floor checks) |
| Time Taken | 1–1.5 weeks |
| Budget | £300–£450 |
| Location | South-east London |

| Service Type | Measured survey with existing drawings (CAD + PDFs) and site photos |
| Time Taken | Around 2 weeks |
| Budget | £550–£700 |
| Location | South Harrow, north-west London |

| Service Type | Measured survey & existing drawings (plans, elevations, CAD + PDFs) |
| Time Taken | Around 10–12 days |
| Budget | £550–£650 |
| Location | Pinner, north-west London |

| Service Type | Full measured building survey + topographical survey, existing plans, elevations, section & CAD package |
| Time Taken | 2 weeks |
| Budget | £1,100–£1,250 |
| Location | Mill Hill, North-West London |

| Service Type | Measured Survey & Existing Drawings (Plans & Elevations including Attached Garage) |
| Time Taken | 1–2 weeks |
| Budget | £650–£750 |
| Location | Englefield Green, Egham |

| Service Type | Lease-extension measured survey & CAD floor plan |
| Time Taken | 1 week |
| Budget | £300–£450 |
| Location | Berryfield Park area, Melksham (Wiltshire) |

| Service Type | Proposed first-floor plans and elevations from client-supplied drawings |
| Time Taken | Around 1 week from instruction and payment to final drawings (plus client approvals) |
| Budget | £160–£220 |
| Location | Sittingbourne |

| Service Type | Measured Survey, Existing Drawings, Internal Elevations and Ceiling Plans |
| Time Taken | Around 3–4 weeks (staged issue) |
| Budget | £2,200–£3,150 |
| Location | Twickenham |