Ravi is one of our longest-standing trade clients. He regularly instructs us to produce “as per usual” existing plans and elevations for houses he is redeveloping, so we already had a shared understanding of the deliverables and drawing style he needs for his designers and planning consultants.
For this project, he asked us to survey a two-storey house with an attached garage in Englefield Green, Egham. The brief was simple but familiar:
- Full existing plans and elevations to our standard PCD template
- Clean, editable DWG files for his design team
- Turnaround coordinated with another live project we were handling for him at the same time
Because this property was being progressed alongside another site we were already drawing for Ravi, it was important that we handled both pricing and timing clearly so he could plan his next steps across multiple schemes.
Quotation and fee negotiation
We began with our standard process:
- Prepared a quotation based on:
- Internal floor area over two storeys
- Inclusion of the attached garage (important for future extension or conversion planning)
- Travel time and survey duration
- Full CAD drafting and QA time
Ravi came back candidly: in his words, the house “isn’t that big” and he needed the fee to be closer to a specific figure to make the numbers work.
Rather than stripping the scope down in a way that would compromise the usefulness of the drawings, we:
- Explained the need to maintain a minimum fee to cover survey, drafting and QA costs
- Confirmed that the garage was included because it’s physically attached and usually relevant to planning/design decisions
- Issued a revised quotation that balanced:
- A meaningful reduction from the original fee
- A still-sustainable level for us as a specialist measured survey provider
Once that was agreed, Ravi asked for our earliest availability and we moved straight into scheduling.
Scheduling and access coordination
Ravi was keen to move quickly and get the survey secured. After some back-and-forth on dates, we proposed:
- Friday 14 November
- Arrival window: 9:30 am to 10:00 am
Ravi confirmed that:
- The client could provide access on that date
- The initial invoice could be paid promptly to lock the slot in
We then:
- Issued the invoice for the deposit
- Received payment and sent a payment receipt
- Confirmed our surveyor’s details (Ali) and arrival window so Ravi could coordinate access and introduce us as part of his professional team
From that point, the project moved into our standard “Confirmed” → “Ready to Start / In Progress” flow.
How we carried out the survey
On the day, our surveyor attended within the agreed time window. The house was a typical suburban property with an attached garage and a straightforward internal layout, but the brief still required precise, CAD-ready measurements.
Using a laser disto and tape, plus a disciplined room-by-room workflow, we:
- Measured external envelope:
- Overall lengths and widths of the main house
- Garage footprint and connection to the main structure
- Door and window positions and sizes on all elevations
- Captured internal plans:
- Wall positions and thicknesses
- Door swings, openings and any structural nibs
- Stairs, landings and key level changes
- Recorded vertical information:
- Floor-to-ceiling heights at ground and first floor
- Head heights to key openings
- Roof eaves and ridge levels (where accessible/visible)
- Took reference photographs:
- Each elevation
- Key internal spaces
- The interface between the house and garage
As usual, our surveyor cross-checked overall dimensions (for example, total external width vs. sum of internal room widths plus wall thicknesses) to keep cumulative error within acceptable tolerances for planning and early design work.
Turning survey data into drawings
Back at the office, the raw measurements and site photos were passed to our CAD team. For Ravi’s projects we follow a consistent, trade-friendly structure so his designers know exactly what to expect from us every time.
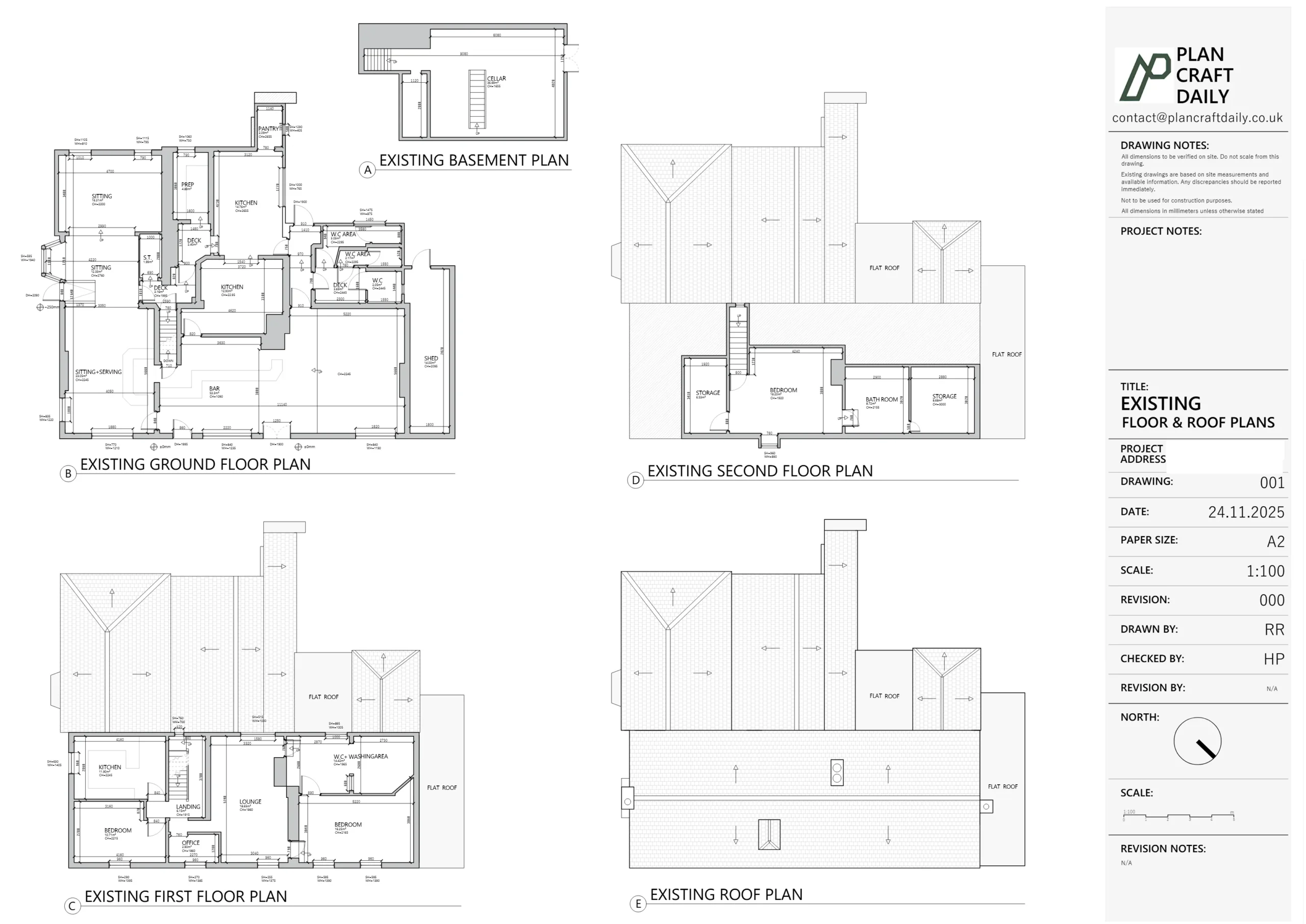
For this Englefield Green property, we produced:
- Existing floor plans
- Ground floor and first floor plans set out on our standard UK-compatible layer structure
- Clear indication of the attached garage, main entrance, circulation and key partitions
- Windows and doors modelled accurately for easy reuse in proposed layouts
- Existing elevations
- Principal elevations showing:
- Existing window and door configurations
- Roof form and pitch
- Relationship between the main house and garage
- Line weights and hatching optimised for planning drawings (so Ravi’s designer could drop in proposed work without re-structuring the file).
- Principal elevations showing:
- Consistent CAD standards
- All files delivered as DWG, with sensible layer naming and line types
- Viewports and scales chosen so the drawings could go straight into planning sheets with minimal rework
Before anything went out, the project passed through our internal QA step:
- Dimensions spot-checked against survey notes
- Elevations cross-checked against both photos and plan geometry
- File structure confirmed to match Ravi’s “usual” expectations across his previous jobs with us
Once we were satisfied, the drawings were exported to a draft PDFs pack and reviewed a final time before issuing.
Managing timelines across multiple live projects
At the time we were also finalising another property for Ravi (83 Boldmere Road), so he understandably emailed asking when both projects would be ready. To keep things transparent, we:
- Confirmed that Boldmere would be completed first (within days)
- Set a realistic expectation that 46 Simons Walk would follow the next week
As soon as 46 Simons was complete, Zoha sent:
- The draft drawings pack
- The final invoice, making it clear that the DWG files and full photo set would be released once the balance was settled
Ravi quickly paid the final invoice and replied to ask for the drawings so he could start work on them immediately. We:
- Confirmed receipt of payment
- Issued the final drawings, CAD files and associated materials
- Sent the payment receipt to close out the project neatly on his records
Final outcome
For Simons Walk in Englefield Green, we delivered:
- A complete, reusable CAD base of existing conditions for a two-storey house with attached garage
- Plans and elevations that matched Ravi’s established expectations of our work, allowing him to hand them straight to his design team
- Turnaround that remained within the agreed time frame, even while juggling another project for the same client
- A clear, professional paper trail of quotation → invoice → deposit → survey → drafts → final invoice → receipt
For Ravi, the main win was reliability: he negotiated a fee that worked for his margins, then received exactly what he needed, when he needed it, in a familiar CAD structure.
For us, this project reinforced the value of long-term trade relationships: once we understand a client’s “as per usual” deliverables, we can keep delivering consistent, planning-ready measured surveys across multiple sites with minimal friction.
Project Details
| Service Type | Measured Survey & Existing Drawings (Plans & Elevations including Attached Garage) |
| Time Taken | 1–2 weeks |
| Budget | £650–£750 |
| Location | Englefield Green, Egham |
















