Sundeep, the owner of a country hotel on the outskirts of Bracknell, was working with architect Anupama on a programme of extensions and layout changes. They already had some legacy drawings of the building and car park, but:
- The existing plans were incomplete and not dimensioned the way the architect needed for design work.
- The parking area was critical for the feasibility of future extensions, so the external areas needed to be covered properly.
- They wanted to future-proof things by having a clean, CAD-ready existing model that the architect could develop without re-measuring on site.
The brief was clear: provide architect-grade existing drawings, including the hotel building and car park, with internal and external dimensions clearly set out to support design and planning.
Scope and survey brief
After an initial exchange with the architect, we proposed a two-part scope:
- Full measured survey of the building and key external areas, including:
- Basement
- Ground floor
- First floor
- Second floor
- Roof outline
- External circulation and car park
Using a senior surveyor, internal 3D scanning and drone footage where appropriate to speed up capture and improve accuracy.
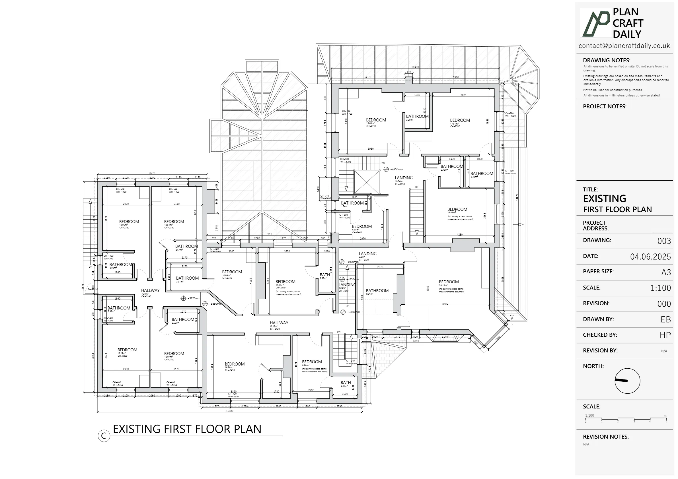
- Existing drawings pack for design use, including:
- Dimensioned floor plans (basement to second floor)
- Roof plan
- Dedicated car park plan
- Drawings formatted and dimensioned in line with a sample set Sundeep provided (internal and external dimensions clearly shown for proposed extension work).
We also confirmed up front that this was not a 3D modelling job—“3D” referred to the scanning method, not to a 3D BIM model—so expectations on outputs were aligned from day one.
How we carried out the survey
Once the client approved our fee and paid the initial invoice, we:
- Scheduled the survey for a date convenient to the hotel operations, with Sundeep as the on-site contact.
- Assigned our senior surveyor, equipped for:
- Laser measurements for key dimensions
- Internal 3D scanning of circulation spaces and bedrooms
- External checks of the parking layout and boundaries, using the previous car-park drawings as a reference.
Key on-site focuses:
- Level changes and access – the hotel has changes in level, ramps and steps; we made sure these were captured carefully, as they were important for future design and compliance.
- Car park and garden – at the client’s request, we treated the parking area as a core deliverable, not just a rough outline. The surveyor worked from existing drawings plus on-site checks to capture as much as reasonably possible within the agreed scope.
- Operational constraints – as the building was in active use, some rooms could be temporarily inaccessible; these were flagged clearly in our notes and later indicated on the drawings.
Turning the survey into architect-ready drawings
Back in the office, our CAD team converted the survey data into a structured drawing set:
- Separate PDF plans for:
- Existing basement floor
- Existing ground floor
- Existing first floor
- Existing second floor
- Existing roof plan
- Existing car park plan
- A single combined DWG file (“Plan Craft – Existing.dwg”) with:
- Consistent layer structure for floors, walls, doors, windows, stairs, and external features.
- Internal and external dimensions clearly shown in the style requested by Sundeep, matching the sample he’d sent earlier.
- Clear annotation of any areas with constrained access or assumptions based on 3D scans and previous plans.
During drafting we also highlighted a limitation: the car park boundaries and markings were not perfect in reality, due to planting and some inconsistencies on site. We therefore:
- Included the best-available measured representation within the agreed scope.
- Recommended a separate topographical survey if, in future, they needed boundary-grade accuracy for legal or engineering work.
Managing questions, expectations and payment
There were a few important points of communication along the way:
- 3D expectations: Sundeep initially asked about “3D drawings.” We clarified that our scope included 3D internal scanning, not 3D model deliveries, and backed this up with a sample so everyone knew exactly what they’d receive.
- Parking coverage: The client correctly emphasised that the parking areas must be included. We adjusted the quote to reflect the expanded external scope and confirmed in writing that the car park would be covered in the existing drawings.
- Release of CAD files:
- As with all professional clients, we reiterated that DWG files and the final pack are released once the final invoice is settled.
- Once Sundeep arranged payment of the balance, we issued the full set: DWG + all PDFs + 3D scan outputs, with a formal payment receipt.
We also made it clear that we were happy for the architect to review the drafts and feed back any revisions, which we would then handle as part of project close-out.
Final outcome
By the end of the project, we had delivered:
- A complete existing drawing set for the hotel and its car park, with:
- Basement to second-floor plans
- Roof plan
- Dedicated car-park plan
- Dimensioning specifically tailored for design and extension work.
- A clean DWG base file that the architect could develop straight into their proposed scheme.
- 3D scan data covering key floors and communal areas, giving the design team an additional visual and dimensional reference without needing repeated site visits.
Sundeep was able to forward the final PDFs and DWG directly to his architect, giving them a reliable and well-structured starting point for the next phase of the project.
For us, this case is a good example of how we work on larger, operational properties:
And still wrapping everything into a single, practical package that an architect can use immediately for design, extensions and planning applications.
Clarifying the difference between survey method and drawing outputs early.
Being honest about limitations (e.g. when a topographical survey is the right next step).
Project Details
| Service Type | Full measured survey with 3D scanning, existing drawings & car park plan |
| Time Taken | Around 1–2 weeks |
| Budget | £900–£1,300 |
| Location | Country hotel near Binfield, Bracknell |

















