Anthony owns a one-bedroom flat in Wiltshire but lives in Surrey. His solicitor arranged a desktop lease-extension valuation, and the valuer requested an accurate floor plan to accompany the deeds.
Anthony had:
- No existing scaled floor plans
- A tenant in place
- A valuation surveyor who couldn’t attend site and was relying on accurate geometry drawn by others
His brief to us was straightforward:
“I just need a reliable floor plan of my flat so my valuer can use it for the lease extension.”
Because he is based out of area and the flat is tenanted, he needed a team who could coordinate access sensitively, produce a plan that a surveyor would trust, and communicate clearly throughout.
Quotation and scope – clarifying exactly what needed to be surveyed
From the initial address, it wasn’t immediately obvious how the building was subdivided. Our first internal working assumption was that:
- The property comprised two floors under the same title, so a standard two-storey measured survey might be required.
We therefore:
- Confirmed in writing that we would carry out a full measured survey of the flat and provide a floor plan suitable for lease-extension valuation.
- Issued a formal quotation covering site visit, measured survey, and CAD drawing.
Anthony replied to:
- Confirm he wanted to go ahead and was happy with the quote
- Ask about upfront payment and how we would coordinate with his tenant via the managing agent
Once he accepted, we moved onto scheduling and access.
Scheduling with a tenant and managing agent
Because Anthony doesn’t live locally and the flat is tenanted, we:
- Proposed weekend survey slots (Saturday or Sunday, early afternoon) to minimise disruption.
- Asked Anthony to:
- Check with the managing agent
- Confirm with his tenant (Sian) which date and time would work
After a short round of emails, the tenant confirmed:
- Sunday 16th, with an arrival window between 1:00 pm and 2:00 pm
We then:
- Issued the invoice for the initial deposit, required to secure the slot
- Received payment and sent a receipt
- Confirmed the surveyor’s details (Ali) and the exact arrival window so both landlord and tenant knew what to expect
This allowed Anthony’s management company to notify the tenant properly and avoid last-minute confusion.
How we carried out the measured survey
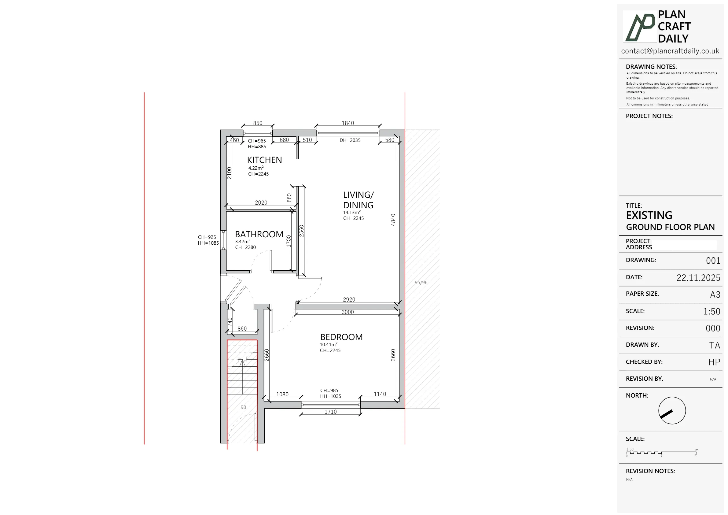
On the agreed Sunday, our surveyor attended within the 1–2 pm window. The brief was tightly focused: a one-bedroom flat floor plan accurate enough for professional valuation work.
On site, the surveyor:
- Used a laser distance meter (disto) and tape for checks
- Measured:
- Overall internal dimensions of the flat (length, width)
- Thicknesses of key walls and partitions
- Door and window openings and their positions
- Kitchen and bathroom footprints and key fittings (for clarity on layout)
- Sketched a clear hand-drawn plan with annotations and measurement chains
- Took reference photographs (for internal QA only, not part of the formal deliverables)
Given it was a tenanted property, the surveyor worked efficiently and respectfully to keep disruption to a minimum while still collecting the level of detail required.
Discovering a split title – and reducing the fee
Once we started processing the survey information against the address and layout, it became clear that:
- Only the ground floor belonged to 97 Berryfield Park
- The upper floor formed part of a separate unit (98 Berryfield) and was not within Anthony’s title or his lease-extension scope
That meant the actual work required for the client’s purpose was:
- A single-level floor plan, not a two-storey set.
Rather than keeping the original fee based on our initial assumption, we:
- Wrote to Anthony explaining the situation in plain language
- Confirmed that only one floor fell within his ownership and the valuation requirement
- Reduced the fee accordingly, aligning the cost to the now-smaller scope
- Issued a revised quotation and final invoice reflecting this reduced scope and cost
We then prepared a draft drawing pack (ground floor plan only) and asked Anthony to review it before making the final payment.
Producing the CAD floor plan for valuation
Back in the office, our CAD technician converted the survey notes into a clean, valuation-ready drawing:
- Created a scaled CAD floor plan in DWG format showing:
- Full extent of the demised flat
- Room boundaries, internal doors, and principal openings
- Approximate wall thicknesses
- Logical room labels (living room, bedroom, kitchen, bathroom, hall, etc.)
- Checked that:
- Total dimensions made sense and no measurement chains conflicted
- The geometry matched both the survey sketch and our site photographs
- Exported:
- A PDF floor plan suitable for sharing with the solicitor and valuer
- The DWG file for any future architectural or valuation work
Once the draft was confirmed as satisfactory, we invited Anthony to proceed with the final payment.
After he emailed to confirm the “final amount” had been paid, we:
- Issued the final CAD and PDF package
- Sent a payment receipt confirming completion
- Included a gentle request for a review, as a way of thanking him for choosing to work with a remote surveying team on a niche lease-extension requirement.
Final outcome
For Anthony’s lease-extension valuation in Melksham, we delivered:
- A precise, single-floor CAD plan of his one-bedroom flat, suitable for a desktop valuation
- Clear, proactive communication with:
- Anthony as the remote landlord
- His management company and tenant, to arrange access
- A transparent fee reduction once it became clear that only one floor was within his ownership
- A smooth sequence from:
- Enquiry → quotation → scheduling → survey → draft plan → revised invoice → final plan & receipt
For Anthony, the key benefits were:
- He could move forward with his lease-extension valuation without travelling to Wiltshire himself.
- He knew the fee fairly reflected the true scope (one floor, not two).
- He gained a reusable CAD asset that can support any future refurbishment, sale or refinancing.
For us, this project is a good example of how careful scope checking and honesty on pricing can build trust—even when we discover mid-project that the job is smaller than originally assumed.
Project Details
| Service Type | Lease-extension measured survey & CAD floor plan |
| Time Taken | 1 week |
| Budget | £300–£450 |
| Location | Berryfield Park area, Melksham (Wiltshire) |












