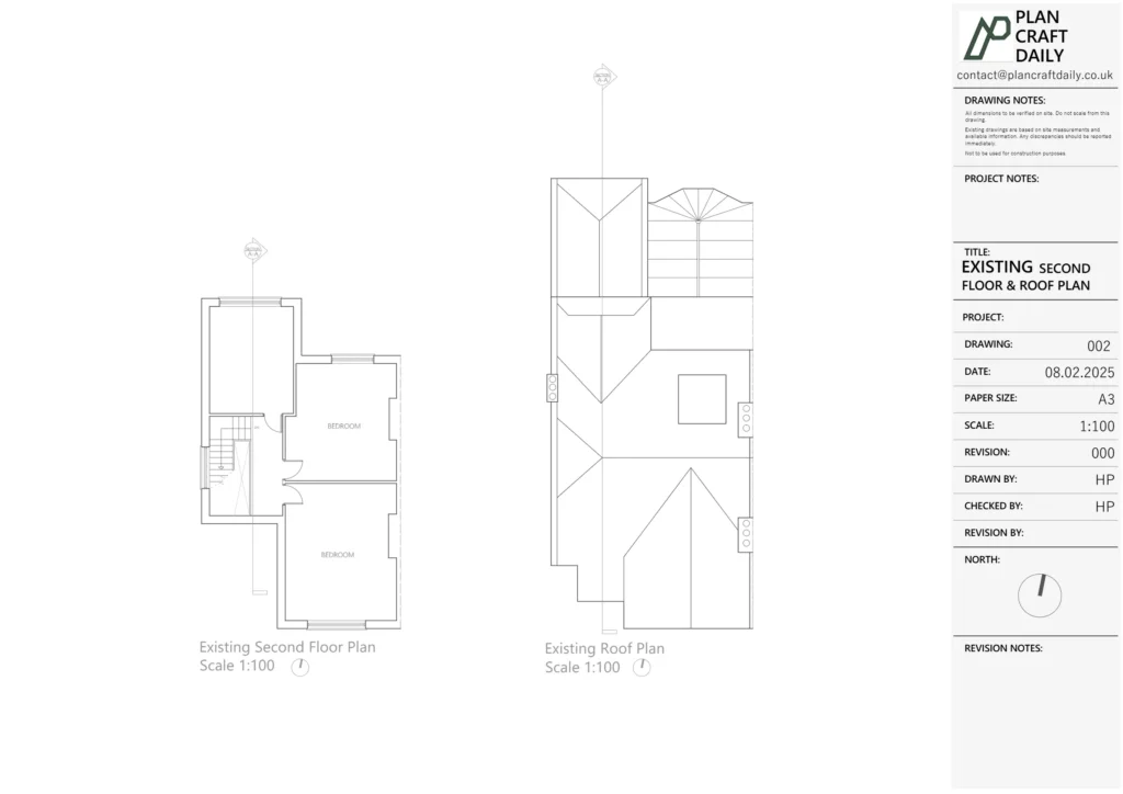
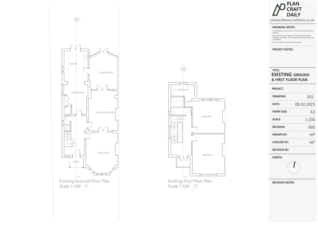
The client needed a full measured survey and a set of existing (as-built) drawings for a residential property in Hornsey, North London, including floor plans, elevations and a section. As this was an initial engagement, the client asked detailed questions about drawing standards and presentation, with clear preferences for a simple, UK-style output (clean linework, no hatching/colour).
The programme also required careful coordination around access and attendance times, with the survey arranged to align with the client’s availability on site. Finally, the client later required the CAD files to be re-issued in an older AutoCAD version to ensure compatibility with their setup.
We confirmed the drawing scope upfront and arranged a site visit within the requested time window. Once access was coordinated, our surveyor attended site to capture the measurements needed to produce accurate existing drawings.
Following the survey, we produced a draft drawing pack for review, allowing the client to check layout and content before final issue. After confirmation, we released the final drawing pack and supporting project files. When the client requested an older CAD format, we re-issued the DWG files in a compatible version so the drawings could be opened and used without disruption.
Drawing scope
Draft-to-final workflow
CAD deliverable format
Site media included

Property Type
Residential
Location
Hornsey, North London
Area
London
Time Taken
7–8 working days
Completed
April 2025