Home » Case Studies » Residential Measured Building Survey & Existing Drawings — Tonbridge, Kent
The client needed a measured survey and existing drawings to support an eventual planning application for a residential property in Tonbridge, Kent. Access arrangements required coordination with the local estate agent, including key collection and return, with survey timing dependent on agent availability.
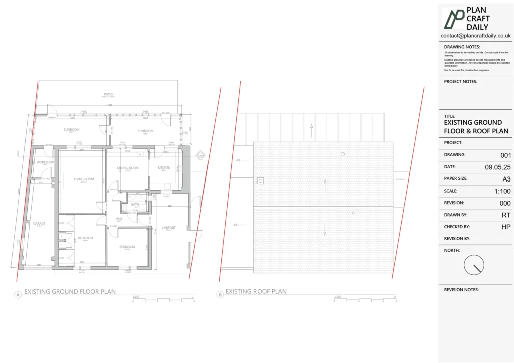
In addition to a full measured survey, the brief included capturing specific dimensional information such as ceiling heights and doorway heights. Externally, the scope needed to cover the carport, garage and side access so that the drawings accurately reflected the property’s current form and constraints.
We confirmed the survey slot and shared the surveyor’s arrival window and contact details, ensuring the agent had clear expectations for access and key handover. Ahead of site work, we confirmed the purpose of the survey so the drawing outputs matched the intended planning-use context.
The survey was completed successfully, covering internal spaces (including the garage) and the required external areas. We then moved into drawings production, working to the agreed turnaround, and followed this with an internal quality assurance review to check consistency, completeness, and measurement integrity before issuing the draft pack for review.
Survey duration (on site)
Drawing turnaround target
Coverage
Quality control

Property Type
Residential
Location
Tonbridge, Kent
Area
Kent
Time Taken
5–6 working days (drawings production)
Completed
May 2025
Get a free, no-obligation quote for your project. We’ll respond within 24 hours.