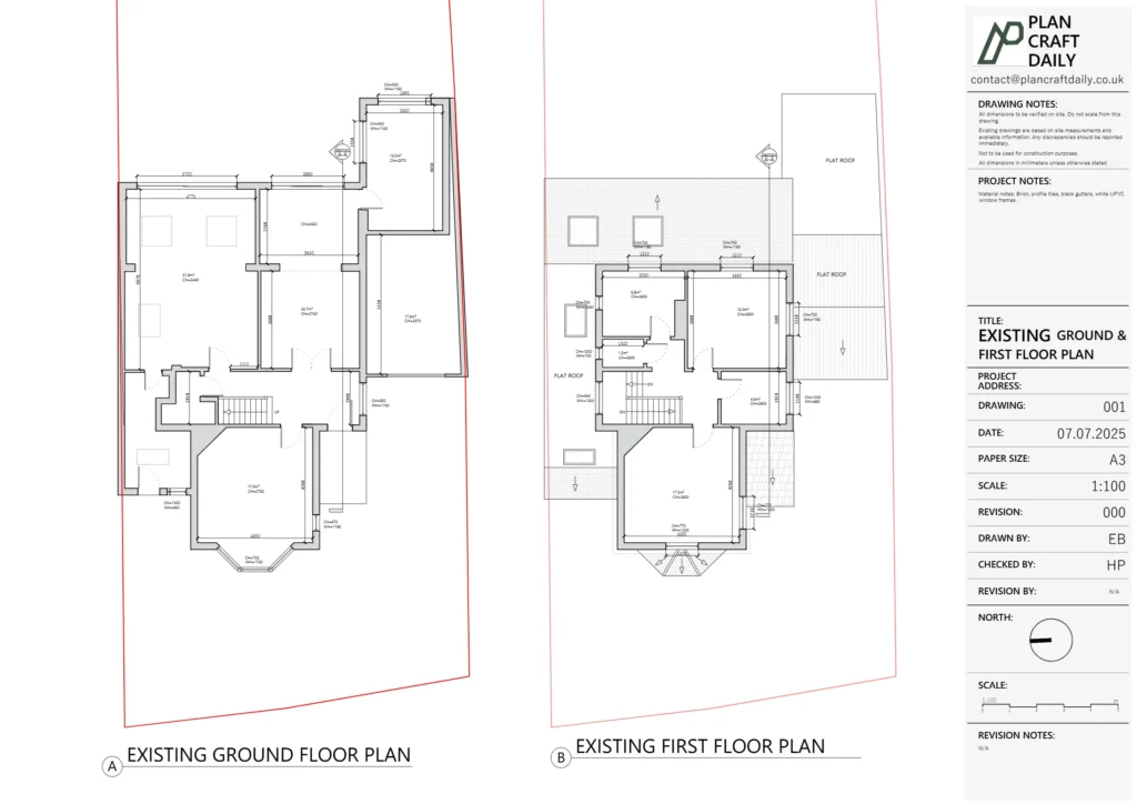
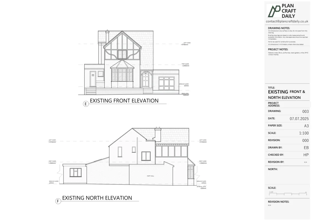
The client needed a measured survey and a full set of as-built drawings for a residential property in Isleworth. The scope included areas that made the documentation more involved than a typical “standard” house, including the garage and a notably large ground-floor extension.
Alongside the technical requirements, the project also required clear coordination around site access and scheduling. The client requested an early survey slot, and the team needed to confirm who would be present on the day to ensure smooth entry and efficient measurement. With the visit arranged for a specific arrival window, accurate information sharing and timely handover of deliverables were key to keeping the project moving.
PlanCraftDaily arranged the site visit for the agreed date and time window and assigned a surveyor to complete the measured building survey. Ahead of the visit, we shared the surveyor’s contact details and requested an on-site point of contact to support access and any on-the-day coordination.
Following the site work, we produced a draft drawings pack and issued it to the client for review. This step ensured the key elements of the property—including the garage and the large ground-floor extension—were correctly represented before finalising. Once feedback was addressed (where required), we prepared and released the final drawings pack, including CAD and PDF formats, along with site photographs for reference.
Survey scheduled
Draft drawings issued
Final pack issued
Notable property elements captured

Property Type
Residential
Location
Isleworth, West London
Area
London
Time Taken
Approximately 3 weeks
Completed
July 2025me