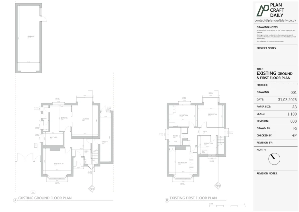
The client needed a full measured site survey with accurate as-built drawings for a residential property in Romford, including plans, sections and elevations. In addition to the main building, the scope required detailed checks on internal heights, roof ridge height, door and window sizes, wall thicknesses, and any other critical measurements that might affect design decisions.
The survey also needed to include the detached garage and specific site information such as the position of manholes. Access coordination was time-sensitive, with instructions for the surveyor to contact the client on arrival to be let into the property. The client requested clear visual context as well, via site photographs and a video walkthrough.
PlanCraftDaily scheduled a site visit and confirmed an arrival protocol so access could be provided smoothly on the day. On site, the surveyor carried out a comprehensive measured survey to capture the geometry needed for reliable as-built outputs: floor plans, elevations and sections.
Measurements included floor-to-ceiling heights, roof ridge height, garage dimensions, and the sizes and heights of doors and windows. Additional checks covered wall thicknesses, the position of manholes, and any other critical dimensions flagged during the survey.
Following the sitework, the drawing pack was quality-checked before issue. The final handover included CAD and PDF drawings, supported by photographs and a video walkthrough to provide visual confirmation of site conditions.
Survey window
Drawing types produced
Key items captured
Supporting site media

Property Type
Residential
Location
Romford, East London
Area
London
Time Taken
12 days
Completed
March 2025