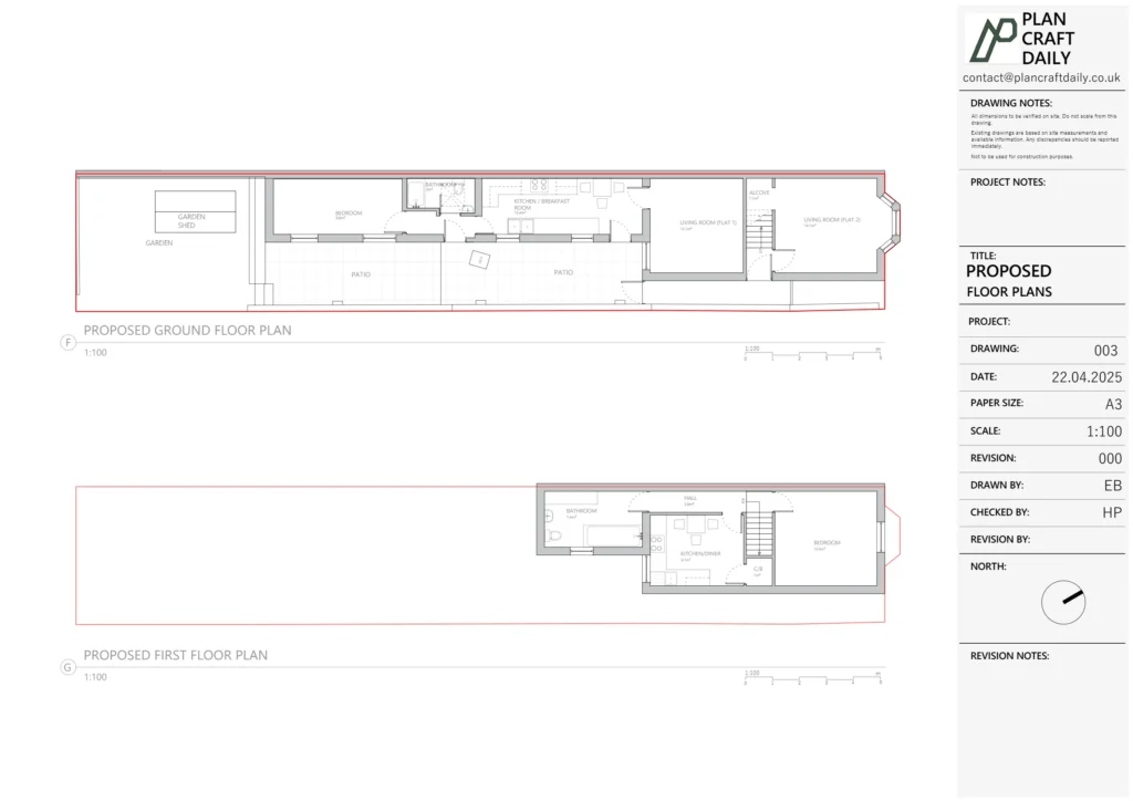
The client needed proposed drawings for first-floor extension works to residential flats in Sittingbourne, built from existing plans plus a set of detailed proposal notes. The scope included multiple elements that had to work together: a new front porch arrangement, a side extension with a defined offset from the boundary, and a rear extension projecting into the garden across the full width.
The notes also included specific requirements that required careful translation into drawings—such as preferred door widths, porch glazing for daylight, a small WC window size, room relationships around the staircase (cloak/boiler/WC positioning), and external envelope decisions including a sloped roof to the side and a flat roof solution at the rear. The client also wanted key kitchen positioning retained while integrating new openings, rooflights and patio doors.
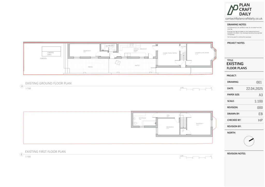
We reviewed the supplied base information (existing plans/CAD and photos) and then structured the proposal notes into a coordinated drawing brief. This ensured the front porch, side extension and rear extension were treated as one cohesive set of works rather than separate, conflicting updates.
Particular attention was given to the internal planning of the side extension—capturing the intended circulation, WC approach and service-room access—while also reflecting the external constraints noted by the client. For the rear extension, we incorporated the requested approach to openings (including a wide sliding door and a centred window position) and recorded the rooflight intent for kitchen/dining daylighting, with final positions marked as subject to confirmation where required.
Where decisions were still to be confirmed in the notes, we carried these forward clearly so the next stage of design coordination could proceed without ambiguity.
Number of units covered
Extension zones
Rear extension projection noted
Rooflights noted

Property Type
Residential
Location
Sittingbourne, Kent
Area
Kent
Time Taken
3–4 working days
Completed
April 2025