Home » Case Studies » Commercial Measured Building Survey – Isle of Dogs, London
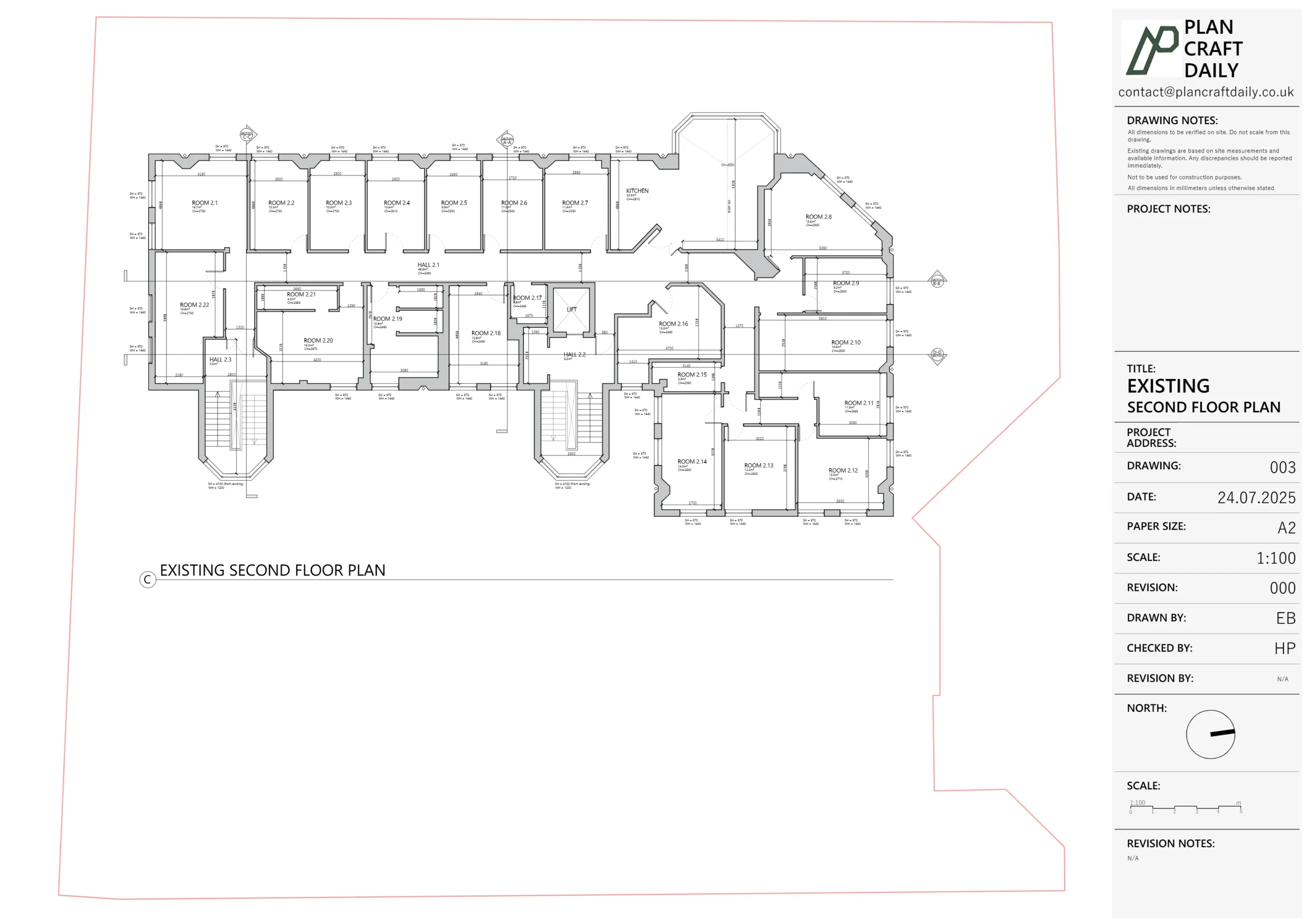
The client needed an updated measured survey and a full set of existing drawings for a commercial property on the Isle of Dogs, including a site plan, roof plan, three floor plans, elevations with spot heights, and sections. The scope also required a topographical survey with key external features (such as kerb lines, boundaries, levels, service covers, and street furniture) captured for design coordination.
During the initial site visit, the team discovered the building was under construction. Active painting works prevented access and measurement of the ground floor at the time, and there was insufficient time on the day to complete the full measured survey. In addition, some internal areas were blocked with no access, and the use of certain rooms could not be confirmed from the survey alone—creating a need for clear notes and careful drawing assumptions.
PlanCraftDaily arranged a second measured survey visit to complete the missing capture, coordinating access and arrival times with the client’s representative. The survey approach focused on collecting consistent, cross-checkable measurements across all levels, while recording any access constraints and site conditions that could affect interpretation.
Back in CAD production, the team prepared a draft drawing pack for review and highlighted key survey limitations directly in the notes: blocked-out zones with no access, doors removed from hinges and therefore omitted, and rooms where the use was unclear at the time of survey. Internal protrusions and elements (including those associated with rainwater downpipes) were drawn as measured. The drawings then moved through internal QA/QC before final issue.
Survey visits
Floors surveyed
Plan set issued
Draft revision noted

Property Type
Commertial
Location
Isle of Dogs, East London
Area
London
Time Taken
26 June–4 August 2025
Completed
August 2025
Get a free, no-obligation quote for your project. We’ll respond within 24 hours.