Home » Case Studies » Semi-detached House Measured Survey & Existing Drawings – Watford
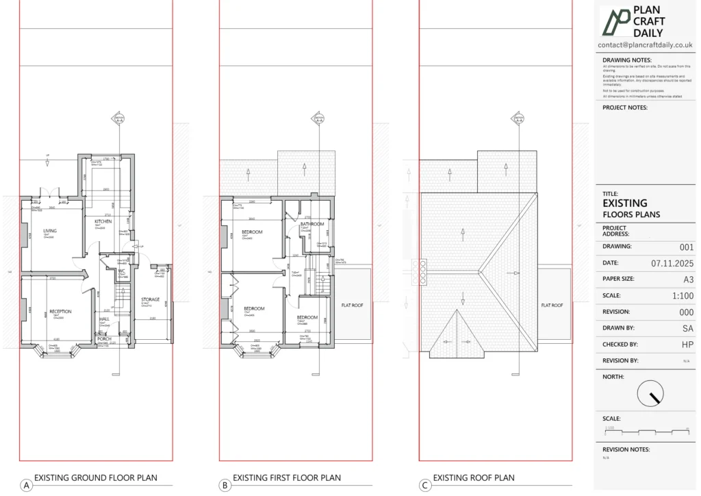
The client team needed a measured building survey and a complete set of existing (as-built) drawings for a semi-detached house in Watford to support the next design stage. The required package included two floor plans, a roof plan, three elevations and one section cutting front-to-back, including the loft space.
Coordinating access was a key constraint. The survey had to fit around family availability, and during the site visit the loft hatch was jammed, preventing full access to the roof void. A rough loft height was taken on site (approximately 3.8m) to ensure the section could still be progressed without delaying the wider drawing set.
We scheduled the on-site visit for 29 October with a confirmed arrival window and named surveyor, then completed the measured survey across the property. Where access was restricted at loft level, we captured what was possible safely on the day and recorded an approximate loft height to support drafting.
Following the survey, we produced the requested existing drawing package: measured floor plans, a roof plan, elevations showing a portion of adjoining properties, and a front-to-back section including the loft. A draft PDF pack was issued first for review.
After review, we finalised the drawing set and supplied the agreed outputs, including CAD and PDF files and site photographs. A later design-stage query (the height of the neighbouring extension shown on the rear elevation) was clarified as approximately 3225mm, allowing the architect to update the elevation confidently.
Survey date
Drawing set produced
Loft height captured (restricted access)
Post-issue dimension confirmed

Property Type
Residential
Location
Watford, Hertfordshire
Area
Hertfordshire
Time Taken
Approx. 12 days
Completed
November 2025
Get a free, no-obligation quote for your project. We’ll respond within 24 hours.