Home » Case Studies » One-Bedroom Flat Measured Floor Plan – Melksham, Wiltshire
The client needed a measured, survey-based floor plan for a one-bedroom flat in Melksham to support a lease extension valuation process. They already had the title deeds but did not have an up-to-date plan, and local surveyor availability had been difficult to secure.
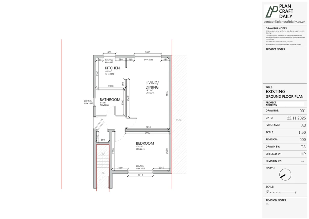
Access needed to be coordinated via the client’s tenant and management company, with a specific weekend slot agreed to minimise disruption. During delivery, it also became clear that the property extent was not as initially assumed: the client’s flat related to the ground floor only, while the upper floor formed part of a neighbouring address and was outside the survey scope.
PlanCraftDaily scheduled a site visit within an agreed arrival window and provided named surveyor details to support smooth on-site coordination. A measured survey of the flat was completed as planned, with communication kept clear around access, timing, and what would be produced.
Following the survey, we prepared an existing drawing as a ground floor plan based on site measurements. Once the extent of the client’s property was confirmed (ground floor only), we finalised the drawing set to reflect the correct demise. A draft plan was shared first so the client could review before release of the final drawing pack.
Property type
Floors covered
Primary drawing produced
Turnaround window

Property Type
Residential
Location
Melksham, Wiltshire
Area
Wiltshire
Time Taken
Around 2 weeks
Completed
November 2025
Get a free, no-obligation quote for your project. We’ll respond within 24 hours.