The client’s architect needed a measured survey and a reliable set of existing drawings for a terraced house in SW London to support proposal design work. Coordination was required around the homeowner’s availability, with clear expectations that the visit was solely for measurement and documentation.
After the initial draft pack was shared for review, the architect requested additional clarity around ceiling detail to help progress their proposal thinking. A further practical issue then arose at handover stage when the architect reported that files appeared to contain watermarks and asked for a clean set suitable for professional use.
We arranged the survey slot around the confirmed access window and shared the surveyor’s details to support smooth on-site coordination. The project was handled with the architect as the primary liaison, ensuring site access and communication remained straightforward for the homeowner.
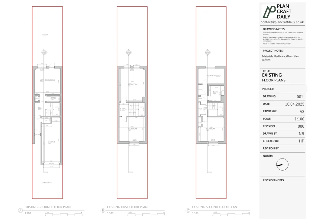
Following the survey, we produced the existing drawing set covering the key views required for onward design: plans, elevations, and a section. After the architect reviewed the issue and confirmed watermarks were present on the files they had opened, we asked them to re-check the previously uploaded finals and then provided a direct download of the final, clean PDFs to remove any delays and ensure they had the correct pack.
Property type
Primary stakeholder
Drawing set
Formats issued

Property Type
Residential
Location
Tooting, South West London
Area
London
Time Taken
3–5 working days (existing drawings target)
Completed
April 2025