The client needed a measured building survey and a complete set of existing drawings for a residential property in Richmond, including associated outbuildings (studio and shed). The drawings were required promptly so the wider team could begin design and coordination work.
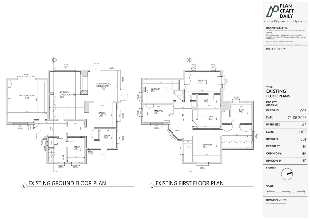
The project also required smooth on-day coordination, including confirming who would be present on site and sharing surveyor contact details to ensure access and timing were managed. After the initial drawing issue, the client flagged a technical problem: the ground and first floor plans did not align correctly when overlaid, creating risk for downstream design work if left unresolved. The feedback was treated as urgent, with the team rechecking the files and preparing an updated revision.
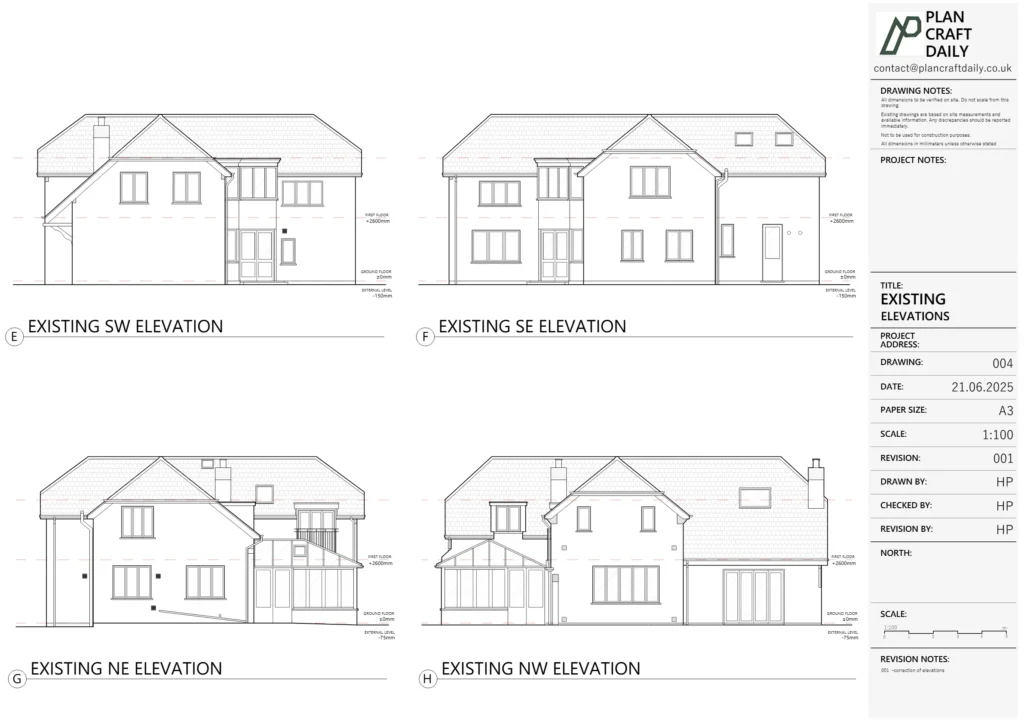
PlanCraftDaily scheduled the site visit and shared practical arrival details to support access on the day. Following the survey, the CAD team produced an existing drawing pack for review, covering the key set of measured outputs requested (plans, elevations, roof plan and section), and accounted for the main building plus the outbuildings.
When the client reported that floor levels did not line up across drawings, the team reviewed the set, corrected the misalignment, and reissued the drawings as “Rev001” so the client could rely on consistent geometry when overlaying plans. Where file availability was raised (the latest DWG not appearing on the server), the DWG was resent to ensure the client had the correct version for ongoing work. The team also confirmed the full file set had been checked and invited any further specific items for review.
Survey attendance window
Drawing pack iterations
Structures included
Key coordination issue resolved

Property Type
Residential
Location
Richmond, South West London
Area
London
Time Taken
Approx. 2–3 weeks (survey to revised issue)
Completed
June 2025