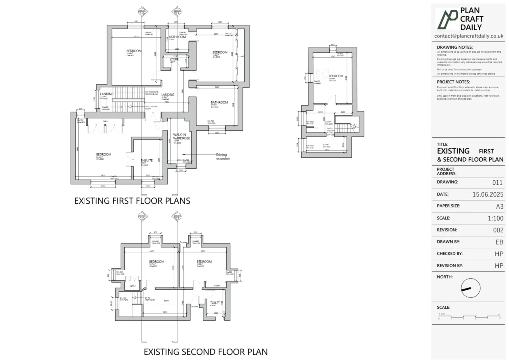
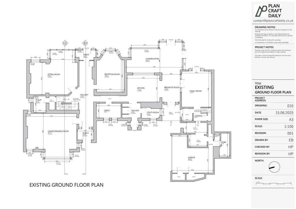
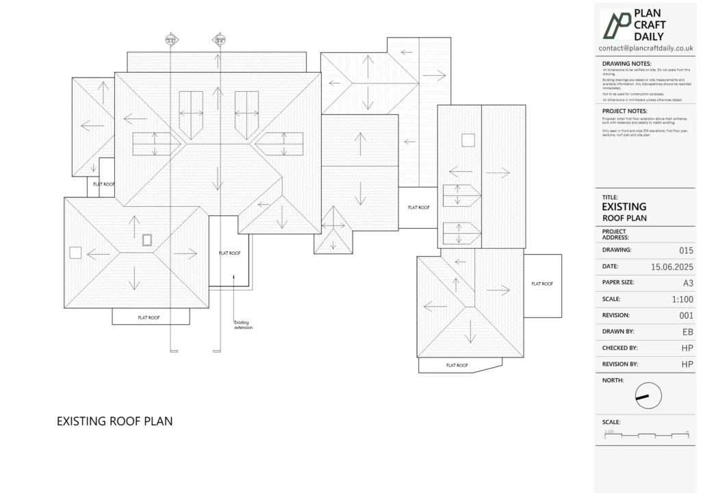
According to a document from June 2025, the client needed pre-existing, existing, and proposed drawings for a residential property in Kenley to support a retrospective planning submission within a tight deadline. The project centred on a first-floor front extension above the main entrance porch, with the affected area sketched onto the first-floor plan by the surveyor.
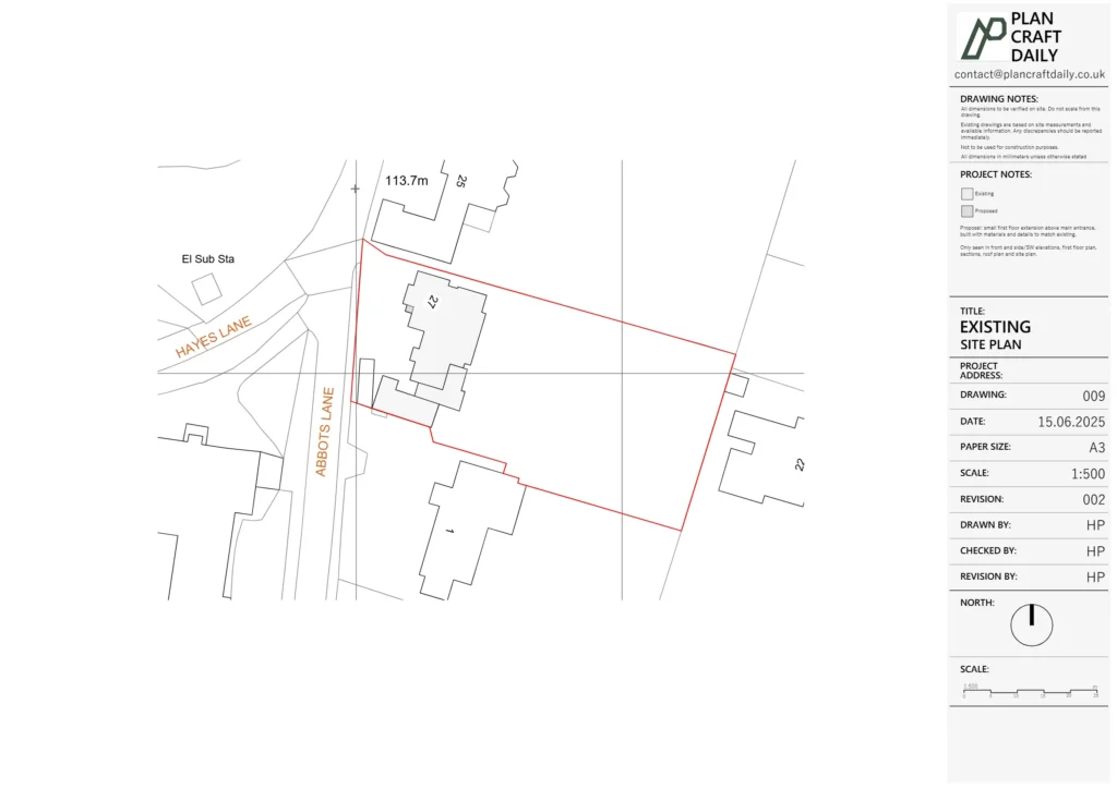
During review, the planning team requested several clarity improvements to strengthen the submission pack. These included removing a proposed-development outline from the site plan, confirming whether an outline on the location plan was necessary, and clarifying internal circulation between floors. They also asked for an additional section through the existing added room and clear room tagging to explain its intended use.
PlanCraftDaily prepared coordinated drawing packs covering pre-existing and existing conditions, then developed proposed drawings for the first-floor front extension. The packs included floor plans, roof information where required, elevations, and a section, supported by site and location plans.
Following the planning reviewer’s annotated feedback, we revised the title block, updated labels, and issued a Rev001 set for both pre-existing and existing drawings. We then aligned the site plan and location plan across both sets, highlighting boundaries consistently and ensuring road names were clearly shown. Additional updates addressed the request for clearer depiction of the existing added room across plans/elevations/section, plus room labelling and improved readability for submission.
Drawing sets
Plans included
Elevations included
Sections included

Property Type
Residential
Location
Kenley, South London
Area
London
Time Taken
Completed
June 2025